Menu

Maison

4800 Verviers Lambermont

136 m²
3
1

HOME'S IMMO

Contacter HOME'S IMMO

info@homes-immo.be

Appeler HOME'S IMMO

0494 60 56 82
Description
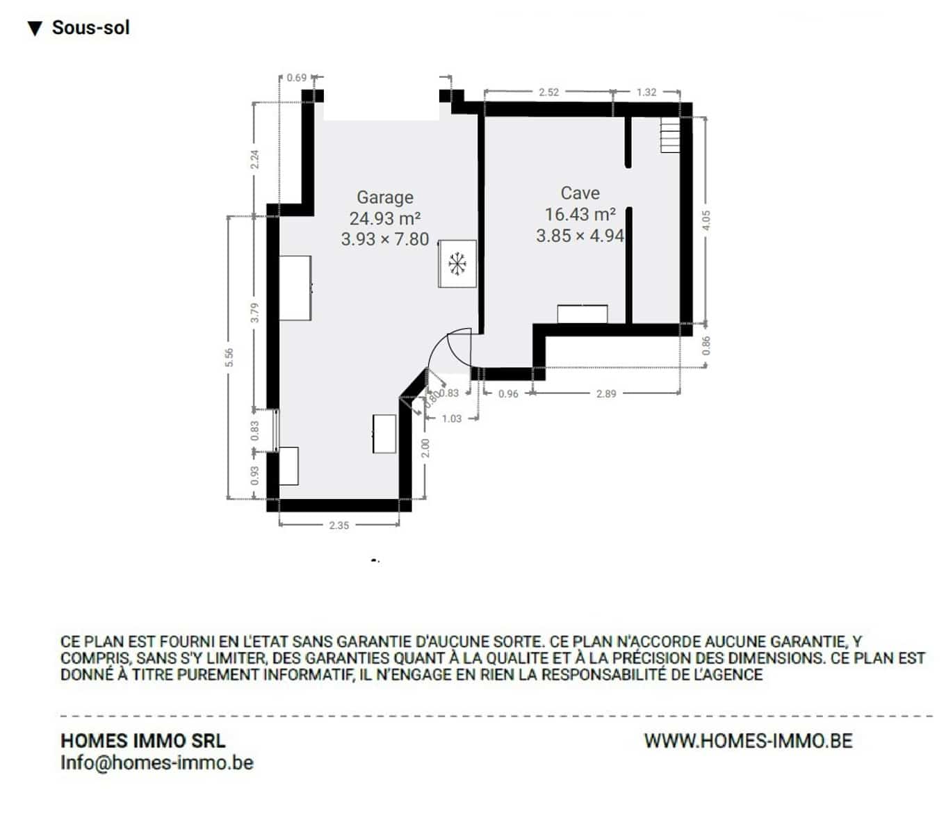
!!! 3% DE FRAIS D'ACHAT !!! La société HOME'S IMMO a le plaisir de vous proposer à la vente cette belle maison 4 façades lumineuse, bénéficiant d'une très belle vue dégagée/panoramique !! Ne tardez pas à réserver votre visite !!! De plus, elle est située dans une impasse (calme) et à proximité de toutes les facilités (bus, écoles, magasins etc...) Adresse: Rue la Corniche 3 - 4800 Lambermont Le bien est composé (136 m² selon PEB) au RDC : d'un grand hall d'entrée, toilette indépendante, vestiaire, salon, une salle à manger, cuisine équipée, accès direct au jardin/terrasse. Au +1 : d’un hall de nuit distribuant trois grandes chambres à coucher, une salle de bains avec wc. Au +2 : Un grenier isolé Au -1 : grandes caves, espace chaufferie ainsi qu'un grand garage ! TECHNIQUES : PEB : F, châssis pvc double vitrage en partie, simple vitrage, parcelle de 554m², électricité non-conforme, cassette à bois, chauffage central mazout + radiateurs, RC : 1377 €, volets, toitures isolées. PEB: F - n°20240917010943 - 431 kWh/m².an - 58 635 kWh/an. Disponible directement à l'acte authentique !!! ANNONCE NON CONTRACTUELLE - SOUS RESERVE D'ACCEPTATION DU PROPRIETAIRE. Réservez votre visite via e-mail info@homes-immo.be ou via GSM : 0494 60 56 82

Adresse

rue la corniche 3, 4800 Verviers Lambermont, Belgique

Type de bien

Maison

État du bien

Bon état

Nombre d'étages

3

Conformité électrique

oui, non conforme

Chauffage

mazout (chauf. centr.)

Prix

255 000 €

Disponibilité

à l'acte

Cadastre

1 377 €

Classe énergétique PEB

F

Code unique PEB

20240917010943

Valeur énergétique E-SPEC

431 kWh/m²/an

Valeur énergétique total E-Total

58635 Kwh/an

Type de chauffage

mazout (chauf. centr.)

Sup. totale

136 m²

Sup. du terrain

554 m²

Sup. du living

34 m²

Cuisine

9 m²

Cave

17 m²

Chambre 1

14 m²

Chambre 2

10 m²

Chambre 3

14 m²

Jardin

440 m²

Nb de chambre(s)

3

Toilettes

2

Salles de bains

1

Garages

1

Terrasse

Non

Cave

Oui

Jardin

Oui

Parking

Oui

Double Vitrage

Égouts

Electricité

Gaz

Accès à l'eau

array(133) { ["rank_math_internal_links_processed"]=> array(1) { [0]=> string(1) "1" } ["_thumbnail_id"]=> array(1) { [0]=> string(5) "24704" } ["wpis_locked"]=> array(1) { [0]=> string(1) "0" } ["wpis_id"]=> array(1) { [0]=> string(7) "7149292" } ["wpis_name"]=> array(1) { [0]=> string(18) "RUE DE LA CORNICHE" } ["wpis_reference"]=> array(1) { [0]=> NULL } ["wpis_category_label"]=> array(1) { [0]=> string(6) "Maison" } ["wpis_subcategory_label"]=> array(1) { [0]=> string(6) "Maison" } ["wpis_purpose_label"]=> array(1) { [0]=> string(9) "À vendre" } ["wpis_status_label"]=> array(1) { [0]=> string(5) "Vendu" } ["wpis_links_virtualVisit"]=> array(1) { [0]=> NULL } ["wpis_links_video"]=> array(1) { [0]=> NULL } ["wpis_links_model"]=> array(1) { [0]=> NULL } ["wpis_links_appointment"]=> array(1) { [0]=> NULL } ["wpis_links_custom"]=> array(1) { [0]=> NULL } ["wpis_properties_hasChildren"]=> array(1) { [0]=> string(0) "" } ["wpis_properties_hasParent"]=> array(1) { [0]=> string(0) "" } ["wpis_properties_parentId"]=> array(1) { [0]=> NULL } ["wpis_properties_isFavorite"]=> array(1) { [0]=> string(0) "" } ["wpis_properties_isFurnished"]=> array(1) { [0]=> string(0) "" } ["wpis_finance_price"]=> array(1) { [0]=> string(6) "255000" } ["wpis_finance_priceChangedAt"]=> array(1) { [0]=> string(27) "2025-09-23T11:24:34.753000Z" } ["wpis_finance_availableAt"]=> array(1) { [0]=> NULL } ["wpis_finance_availability"]=> array(1) { [0]=> string(9) "à l'acte" } ["wpis_finance_currency"]=> array(1) { [0]=> string(3) "€" } ["wpis_finance_annuityMonthly"]=> array(1) { [0]=> NULL } ["wpis_finance_cadastre"]=> array(1) { [0]=> string(4) "1377" } ["wpis_finance_propertyTax"]=> array(1) { [0]=> NULL } ["wpis_finance_chargeOwner"]=> array(1) { [0]=> NULL } ["wpis_finance_chargeRenter"]=> array(1) { [0]=> NULL } ["wpis_finance_fieldValue"]=> array(1) { [0]=> NULL } ["wpis_finance_constructionValue"]=> array(1) { [0]=> NULL } ["wpis_finance_notarialDeedValue"]=> array(1) { [0]=> NULL } ["wpis_finance_garageUnitPrice"]=> array(1) { [0]=> NULL } ["wpis_finance_parkingUnitPrice"]=> array(1) { [0]=> NULL } ["wpis_finance_parkingInteriorUnitPrice"]=> array(1) { [0]=> NULL } ["wpis_finance_parkingExteriorUnitPrice"]=> array(1) { [0]=> NULL } ["wpis_finance_offer"]=> array(1) { [0]=> string(0) "" } ["wpis_finance_hidden"]=> array(1) { [0]=> string(0) "" } ["wpis_building_constructionYear"]=> array(1) { [0]=> NULL } ["wpis_building_renovationYear"]=> array(1) { [0]=> NULL } ["wpis_building_orientation"]=> array(1) { [0]=> NULL } ["wpis_building_gardenOrientation"]=> array(1) { [0]=> NULL } ["wpis_building_terraceOrientation"]=> array(1) { [0]=> NULL } ["wpis_building_state"]=> array(1) { [0]=> string(9) "Bon état" } ["wpis_areas_total"]=> array(1) { [0]=> string(3) "136" } ["wpis_areas_ground"]=> array(1) { [0]=> string(3) "554" } ["wpis_areas_garden"]=> array(1) { [0]=> string(3) "440" } ["wpis_areas_living"]=> array(1) { [0]=> string(2) "34" } ["wpis_areas_diningroom"]=> array(1) { [0]=> NULL } ["wpis_areas_kitchen"]=> array(1) { [0]=> string(1) "9" } ["wpis_areas_bathroom"]=> array(1) { [0]=> NULL } ["wpis_areas_cellar"]=> array(1) { [0]=> string(2) "17" } ["wpis_areas_washroom"]=> array(1) { [0]=> NULL } ["wpis_areas_dressing"]=> array(1) { [0]=> NULL } ["wpis_areas_office"]=> array(1) { [0]=> NULL } ["wpis_areas_bedroom1"]=> array(1) { [0]=> string(2) "14" } ["wpis_areas_bedroom2"]=> array(1) { [0]=> string(2) "10" } ["wpis_areas_bedroom3"]=> array(1) { [0]=> string(2) "14" } ["wpis_areas_bedroom4"]=> array(1) { [0]=> NULL } ["wpis_areas_bedroom5"]=> array(1) { [0]=> NULL } ["wpis_areas_showroom"]=> array(1) { [0]=> NULL } ["wpis_areas_storage"]=> array(1) { [0]=> NULL } ["wpis_areas_terrace"]=> array(1) { [0]=> NULL } ["wpis_areas_manufacturing"]=> array(1) { [0]=> NULL } ["wpis_areas_displayWindow"]=> array(1) { [0]=> NULL } ["wpis_energy_epcCode"]=> array(1) { [0]=> string(14) "20240917010943" } ["wpis_energy_epcLabel"]=> array(1) { [0]=> string(1) "F" } ["wpis_energy_epcValue"]=> array(1) { [0]=> string(3) "431" } ["wpis_energy_epcTotal"]=> array(1) { [0]=> string(5) "58635" } ["wpis_energy_gazEmit"]=> array(1) { [0]=> NULL } ["wpis_energy_heatingType"]=> array(1) { [0]=> string(22) "mazout (chauf. centr.)" } ["wpis_energy_solarElectricity"]=> array(1) { [0]=> NULL } ["wpis_energy_electricityConformity"]=> array(1) { [0]=> string(17) "oui, non conforme" } ["wpis_address_street"]=> array(1) { [0]=> string(16) "rue la corniche " } ["wpis_address_number"]=> array(1) { [0]=> string(1) "3" } ["wpis_address_box"]=> array(1) { [0]=> NULL } ["wpis_address_zip"]=> array(1) { [0]=> string(4) "4800" } ["wpis_address_city"]=> array(1) { [0]=> string(19) "Verviers Lambermont" } ["wpis_address_country"]=> array(1) { [0]=> string(8) "Belgique" } ["wpis_address_longitude"]=> array(1) { [0]=> string(15) "5.8398127555847" } ["wpis_address_latitude"]=> array(1) { [0]=> string(15) "50.589626160813" } ["wpis_proximity_highway"]=> array(1) { [0]=> string(1) "1" } ["wpis_proximity_transports"]=> array(1) { [0]=> string(1) "1" } ["wpis_proximity_station"]=> array(1) { [0]=> NULL } ["wpis_proximity_bus"]=> array(1) { [0]=> NULL } ["wpis_proximity_metro"]=> array(1) { [0]=> NULL } ["wpis_proximity_tram"]=> array(1) { [0]=> NULL } ["wpis_proximity_school"]=> array(1) { [0]=> string(1) "1" } ["wpis_proximity_stores"]=> array(1) { [0]=> string(1) "1" } ["wpis_proximity_sportCenter"]=> array(1) { [0]=> string(1) "1" } ["wpis_proximity_beach"]=> array(1) { [0]=> string(1) "1" } ["wpis_configuration_floorCurrent"]=> array(1) { [0]=> NULL } ["wpis_configuration_floorTotal"]=> array(1) { [0]=> string(1) "3" } ["wpis_configuration_bedrooms"]=> array(1) { [0]=> string(1) "3" } ["wpis_configuration_kitchens"]=> array(1) { [0]=> string(1) "1" } ["wpis_configuration_toilets"]=> array(1) { [0]=> string(1) "2" } ["wpis_configuration_bathrooms"]=> array(1) { [0]=> string(1) "1" } ["wpis_configuration_showerrooms"]=> array(1) { [0]=> string(1) "1" } ["wpis_configuration_garages"]=> array(1) { [0]=> string(1) "1" } ["wpis_configuration_terraces"]=> array(1) { [0]=> string(2) "15" } ["wpis_configuration_cave"]=> array(1) { [0]=> string(1) "1" } ["wpis_configuration_parking"]=> array(1) { [0]=> string(1) "1" } ["wpis_configuration_garden"]=> array(1) { [0]=> string(1) "1" } ["wpis_files"]=> array(1) { [0]=> string(6) "a:0:{}" } ["wpis_createdAt"]=> array(1) { [0]=> string(27) "2025-09-23T11:24:34.750000Z" } ["wpis_updatedAt"]=> array(1) { [0]=> string(27) "2025-12-18T11:22:44.100000Z" } ["wpis_purpose_id"]=> array(1) { [0]=> string(1) "1" } ["wpis_status_id"]=> array(1) { [0]=> string(1) "3" } ["wpis_description_title"]=> array(1) { [0]=> string(60) "4 FACADES - JARDIN - GARAGE - 3CH - DV PVC EN PARTIE - LIBRE" } ["wpis_description_base"]=> array(1) { [0]=> NULL } ["wpis_description_short"]=> array(1) { [0]=> string(1301) "!!! 3% DE FRAIS D'ACHAT !!! La société HOME'S IMMO a le plaisir de vous proposer à la vente cette belle maison 4 façades lumineuse, bénéficiant d'une très belle vue dégagée/panoramique !! Ne tardez pas à réserver votre visite !!! De plus, elle est située dans une impasse (calme) et à proximité de toutes les facilités (bus, écoles, magasins etc...) Adresse: Rue la Corniche 3 - 4800 Lambermont Le bien est composé (136 m² selon PEB) au RDC : d'un grand hall d'entrée, toilette indépendante, vestiaire, salon, une salle à manger, cuisine équipée, accès direct au jardin/terrasse. Au +1 : d’un hall de nuit distribuant trois grandes chambres à coucher, une salle de bains avec wc. Au +2 : Un grenier isolé Au -1 : grandes caves, espace chaufferie ainsi qu'un grand garage ! TECHNIQUES : PEB : F, châssis pvc double vitrage en partie, simple vitrage, parcelle de 554m², électricité non-conforme, cassette à bois, chauffage central mazout + radiateurs, RC : 1377 €, volets, toitures isolées. PEB: F - n°20240917010943 - 431 kWh/m².an - 58 635 kWh/an. Disponible directement à l'acte authentique !!! ANNONCE NON CONTRACTUELLE - SOUS RESERVE D'ACCEPTATION DU PROPRIETAIRE. Réservez votre visite via e-mail info@homes-immo.be ou via GSM : 0494 60 56 82 " } ["wpis_description_long"]=> array(1) { [0]=> NULL } ["wpis_amenities_generic"]=> array(1) { [0]=> string(115) "a:5:{i:0;s:14:"Double Vitrage";i:1;s:7:"Égouts";i:2;s:12:"Electricité";i:3;s:3:"Gaz";i:4;s:15:"Accès à l'eau";}" } ["wpis_amenities_custom"]=> array(1) { [0]=> string(6) "a:0:{}" } ["wpis_agency_id"]=> array(1) { [0]=> string(4) "9721" } ["wpis_agency_name"]=> array(1) { [0]=> string(11) "HOME'S IMMO" } ["wpis_agency_phone"]=> array(1) { [0]=> NULL } ["wpis_agency_email"]=> array(1) { [0]=> NULL } ["wpis_agency_addressFormatted"]=> array(1) { [0]=> NULL } ["wpis_agent_firstname"]=> array(1) { [0]=> string(3) "SRL" } ["wpis_agent_lastname"]=> array(1) { [0]=> string(11) "HOME'S IMMO" } ["wpis_agent_email"]=> array(1) { [0]=> string(18) "info@homes-immo.be" } ["wpis_agent_phone"]=> array(1) { [0]=> string(13) "0494 60 56 82" } ["wpis_agent_role"]=> array(1) { [0]=> string(13) "0494 60 56 82" } ["wpis_agent_picture"]=> array(1) { [0]=> string(62) "https://r2.storagewhise.eu/storage7345/Images/Agents/33483.jpg" } ["wpis_dataHash"]=> array(1) { [0]=> string(32) "27d0e26b011eb8db95fce9b4c0796c41" } ["wpis_picturesTemp"]=> array(1) { [0]=> string(6891) "[{"id":"72255782","title":null,"description":null,"order":"0","filename":"fd2df637668e45e0b7b8a9fae7513adb","format":"jpg","url":"https://r2.storagewhise.eu/storage7345/Pictures/7149292/1600/fd2df637668e45e0b7b8a9fae7513adb.jpg"},{"id":"72255841","title":null,"description":null,"order":"1","filename":"7b67474eab594e2ca16c76618a668ba2","format":"jpg","url":"https://r2.storagewhise.eu/storage7345/Pictures/7149292/1600/7b67474eab594e2ca16c76618a668ba2.jpg"},{"id":"72255783","title":null,"description":null,"order":"2","filename":"8229ac4c88da47088dddbcd2275dc8cf","format":"jpg","url":"https://r2.storagewhise.eu/storage7345/Pictures/7149292/1600/8229ac4c88da47088dddbcd2275dc8cf.jpg"},{"id":"72255840","title":null,"description":null,"order":"3","filename":"f2fdaec22df74a8ca550afea6aab36ae","format":"jpg","url":"https://r2.storagewhise.eu/storage7345/Pictures/7149292/1600/f2fdaec22df74a8ca550afea6aab36ae.jpg"},{"id":"72255832","title":null,"description":null,"order":"4","filename":"a8989ea9a7b04d31b84173387393798c","format":"jpg","url":"https://r2.storagewhise.eu/storage7345/Pictures/7149292/1600/a8989ea9a7b04d31b84173387393798c.jpg"},{"id":"72255837","title":null,"description":null,"order":"5","filename":"70d3b42d05df4258b9f5dccdc281f23f","format":"jpg","url":"https://r2.storagewhise.eu/storage7345/Pictures/7149292/1600/70d3b42d05df4258b9f5dccdc281f23f.jpg"},{"id":"72255835","title":null,"description":null,"order":"6","filename":"40566270ebbf407a8539ac428e8809e1","format":"jpg","url":"https://r2.storagewhise.eu/storage7345/Pictures/7149292/1600/40566270ebbf407a8539ac428e8809e1.jpg"},{"id":"72255836","title":null,"description":null,"order":"7","filename":"926eb7fc01304d85b134bed3af8bfa7d","format":"jpg","url":"https://r2.storagewhise.eu/storage7345/Pictures/7149292/1600/926eb7fc01304d85b134bed3af8bfa7d.jpg"},{"id":"72255838","title":null,"description":null,"order":"8","filename":"895f863de7b546cd913ce12565780a91","format":"jpg","url":"https://r2.storagewhise.eu/storage7345/Pictures/7149292/1600/895f863de7b546cd913ce12565780a91.jpg"},{"id":"72255834","title":null,"description":null,"order":"9","filename":"8b9e98fe46e0477eb782e0c47ae355d2","format":"jpg","url":"https://r2.storagewhise.eu/storage7345/Pictures/7149292/1600/8b9e98fe46e0477eb782e0c47ae355d2.jpg"},{"id":"72255839","title":null,"description":null,"order":"10","filename":"f2c50d91f9fd447082cf04eb3299b48f","format":"jpg","url":"https://r2.storagewhise.eu/storage7345/Pictures/7149292/1600/f2c50d91f9fd447082cf04eb3299b48f.jpg"},{"id":"72255788","title":null,"description":null,"order":"11","filename":"fbd33fc7c4f241ea8f56c52f37b0f95d","format":"jpg","url":"https://r2.storagewhise.eu/storage7345/Pictures/7149292/1600/fbd33fc7c4f241ea8f56c52f37b0f95d.jpg"},{"id":"72255785","title":null,"description":null,"order":"12","filename":"c954f6e95edc45c29e8956af592165a0","format":"jpg","url":"https://r2.storagewhise.eu/storage7345/Pictures/7149292/1600/c954f6e95edc45c29e8956af592165a0.jpg"},{"id":"72255786","title":null,"description":null,"order":"13","filename":"34377801327a4d9a9f174d53e40b18e8","format":"jpg","url":"https://r2.storagewhise.eu/storage7345/Pictures/7149292/1600/34377801327a4d9a9f174d53e40b18e8.jpg"},{"id":"72255787","title":null,"description":null,"order":"14","filename":"238f6fb68665490580222cf4fb0dff84","format":"jpg","url":"https://r2.storagewhise.eu/storage7345/Pictures/7149292/1600/238f6fb68665490580222cf4fb0dff84.jpg"},{"id":"72255789","title":null,"description":null,"order":"15","filename":"21ea21b0cf9e4c9487a471bc07a22f8c","format":"jpg","url":"https://r2.storagewhise.eu/storage7345/Pictures/7149292/1600/21ea21b0cf9e4c9487a471bc07a22f8c.jpg"},{"id":"72255790","title":null,"description":null,"order":"16","filename":"d9bf75fe7123489284264656c0b491b2","format":"jpg","url":"https://r2.storagewhise.eu/storage7345/Pictures/7149292/1600/d9bf75fe7123489284264656c0b491b2.jpg"},{"id":"72255791","title":null,"description":null,"order":"17","filename":"ef1b6ffe5a1a4df78094d7046b7bdbae","format":"jpg","url":"https://r2.storagewhise.eu/storage7345/Pictures/7149292/1600/ef1b6ffe5a1a4df78094d7046b7bdbae.jpg"},{"id":"72255792","title":null,"description":null,"order":"18","filename":"363deb10a726417fba175cacd6b96f94","format":"jpg","url":"https://r2.storagewhise.eu/storage7345/Pictures/7149292/1600/363deb10a726417fba175cacd6b96f94.jpg"},{"id":"72255793","title":null,"description":null,"order":"19","filename":"07d82532a76d44db80883e894128e58f","format":"jpg","url":"https://r2.storagewhise.eu/storage7345/Pictures/7149292/1600/07d82532a76d44db80883e894128e58f.jpg"},{"id":"72255830","title":null,"description":null,"order":"20","filename":"323b97bb211245bfa993146ea0930288","format":"jpg","url":"https://r2.storagewhise.eu/storage7345/Pictures/7149292/1600/323b97bb211245bfa993146ea0930288.jpg"},{"id":"72255794","title":null,"description":null,"order":"21","filename":"92e2aceb9ec147c28d07737e0166151d","format":"jpg","url":"https://r2.storagewhise.eu/storage7345/Pictures/7149292/1600/92e2aceb9ec147c28d07737e0166151d.jpg"},{"id":"72255795","title":null,"description":null,"order":"22","filename":"578f0b1acd3c4c65bf14c75073ea439c","format":"jpg","url":"https://r2.storagewhise.eu/storage7345/Pictures/7149292/1600/578f0b1acd3c4c65bf14c75073ea439c.jpg"},{"id":"72255827","title":null,"description":null,"order":"23","filename":"3be0660b4df543299c3c89b22650e601","format":"jpg","url":"https://r2.storagewhise.eu/storage7345/Pictures/7149292/1600/3be0660b4df543299c3c89b22650e601.jpg"},{"id":"72255828","title":null,"description":null,"order":"24","filename":"4e8d800375c24d69805e794fbc75dfa8","format":"jpg","url":"https://r2.storagewhise.eu/storage7345/Pictures/7149292/1600/4e8d800375c24d69805e794fbc75dfa8.jpg"},{"id":"72255831","title":null,"description":null,"order":"25","filename":"5a7b3d0459aa4320b044d6bb0d186913","format":"jpg","url":"https://r2.storagewhise.eu/storage7345/Pictures/7149292/1600/5a7b3d0459aa4320b044d6bb0d186913.jpg"},{"id":"72255984","title":null,"description":null,"order":"26","filename":"90b69a7c4a9344069e7215023ba81e4d","format":"jpg","url":"https://r2.storagewhise.eu/storage7345/Pictures/7149292/1600/90b69a7c4a9344069e7215023ba81e4d.jpg"},{"id":"72255985","title":null,"description":null,"order":"27","filename":"b1c13d2dae85417dbd3766759bd4f486","format":"jpg","url":"https://r2.storagewhise.eu/storage7345/Pictures/7149292/1600/b1c13d2dae85417dbd3766759bd4f486.jpg"},{"id":"72255986","title":null,"description":null,"order":"28","filename":"84fd9175ece04428b35e4d5bdbdf89a3","format":"jpg","url":"https://r2.storagewhise.eu/storage7345/Pictures/7149292/1600/84fd9175ece04428b35e4d5bdbdf89a3.jpg"},{"id":"72256032","title":null,"description":null,"order":"29","filename":"5784d244e5864004af750d55c37305c4","format":"jpg","url":"https://r2.storagewhise.eu/storage7345/Pictures/7149292/1600/5784d244e5864004af750d55c37305c4.jpg"}]" } ["wpis_picturesHashChanged"]=> array(1) { [0]=> string(0) "" } ["wpis_picturesHash"]=> array(1) { [0]=> string(32) "7575172f12c0c11f9ee97b54d4d2ea98" } ["wpis_completed"]=> array(1) { [0]=> string(1) "1" } ["_wp_old_slug"]=> array(1) { [0]=> string(26) "7149292-rue-de-la-corniche" } ["wpis_unmapped"]=> array(1) { [0]=> string(6) "a:0:{}" } }
Estimation gratuite