Menu

Terrain

4845 Jalhay

HOME'S IMMO

Contacter HOME'S IMMO

info@homes-immo.be

Appeler HOME'S IMMO

0494 60 56 82
Description
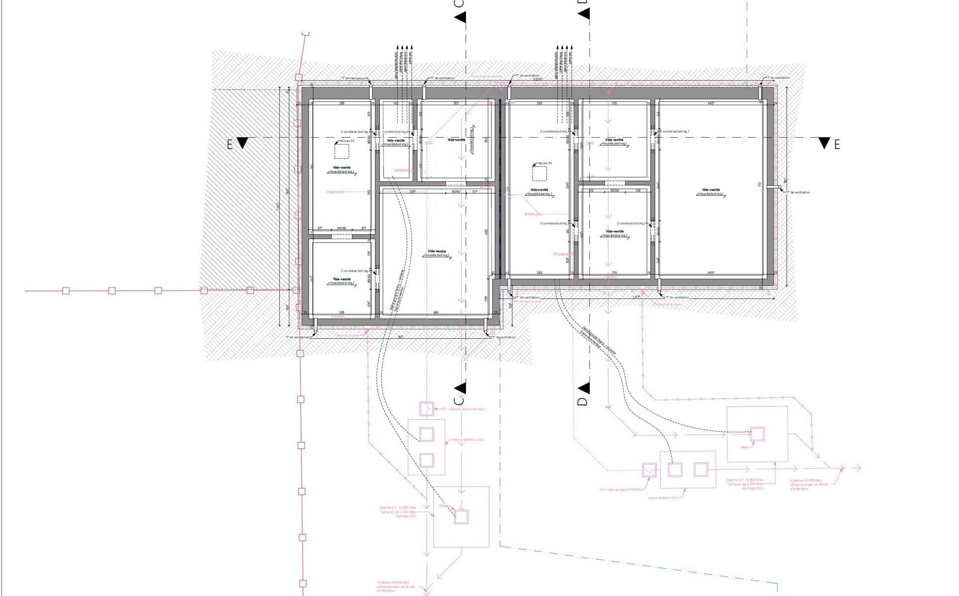
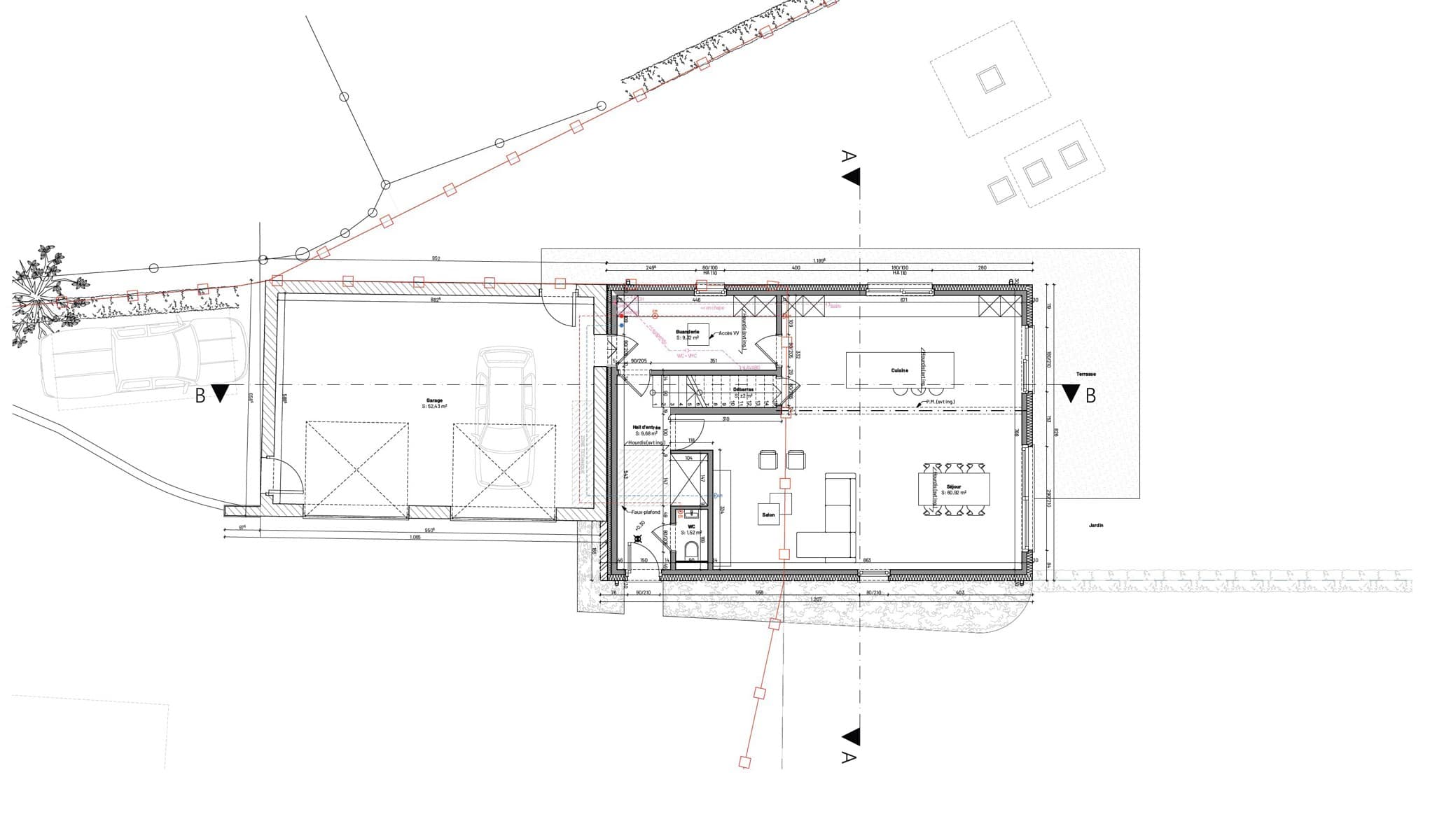
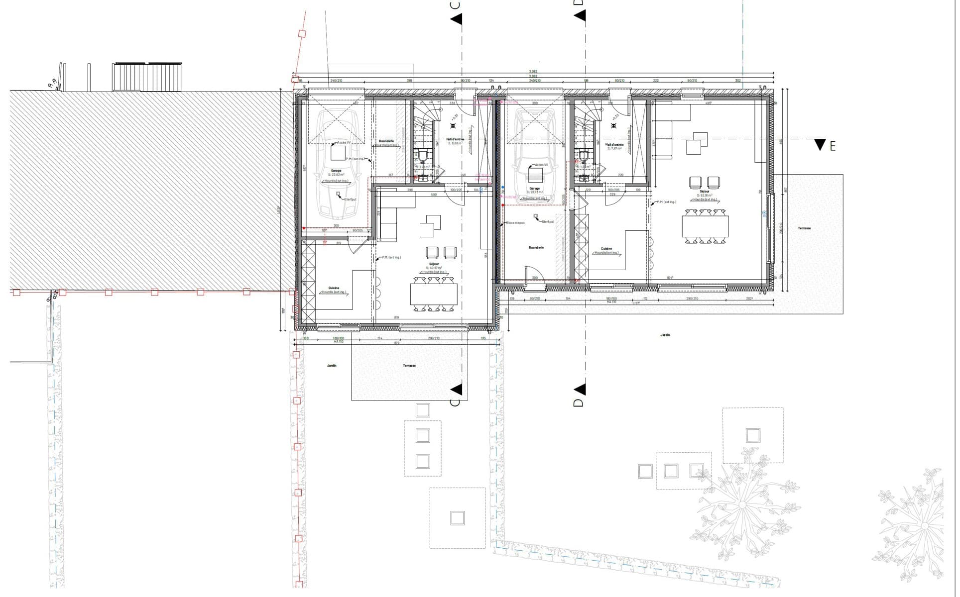
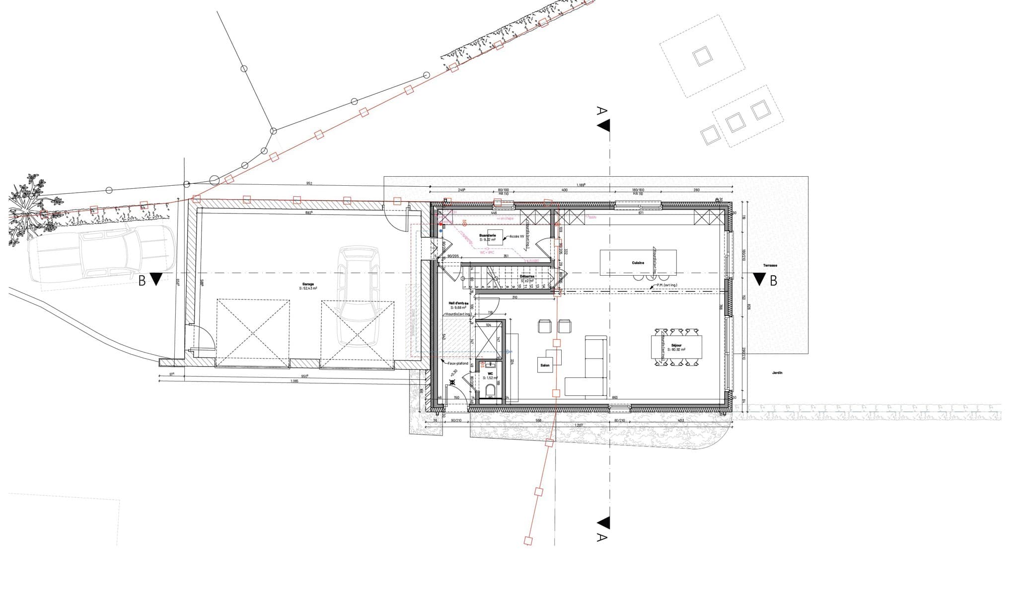
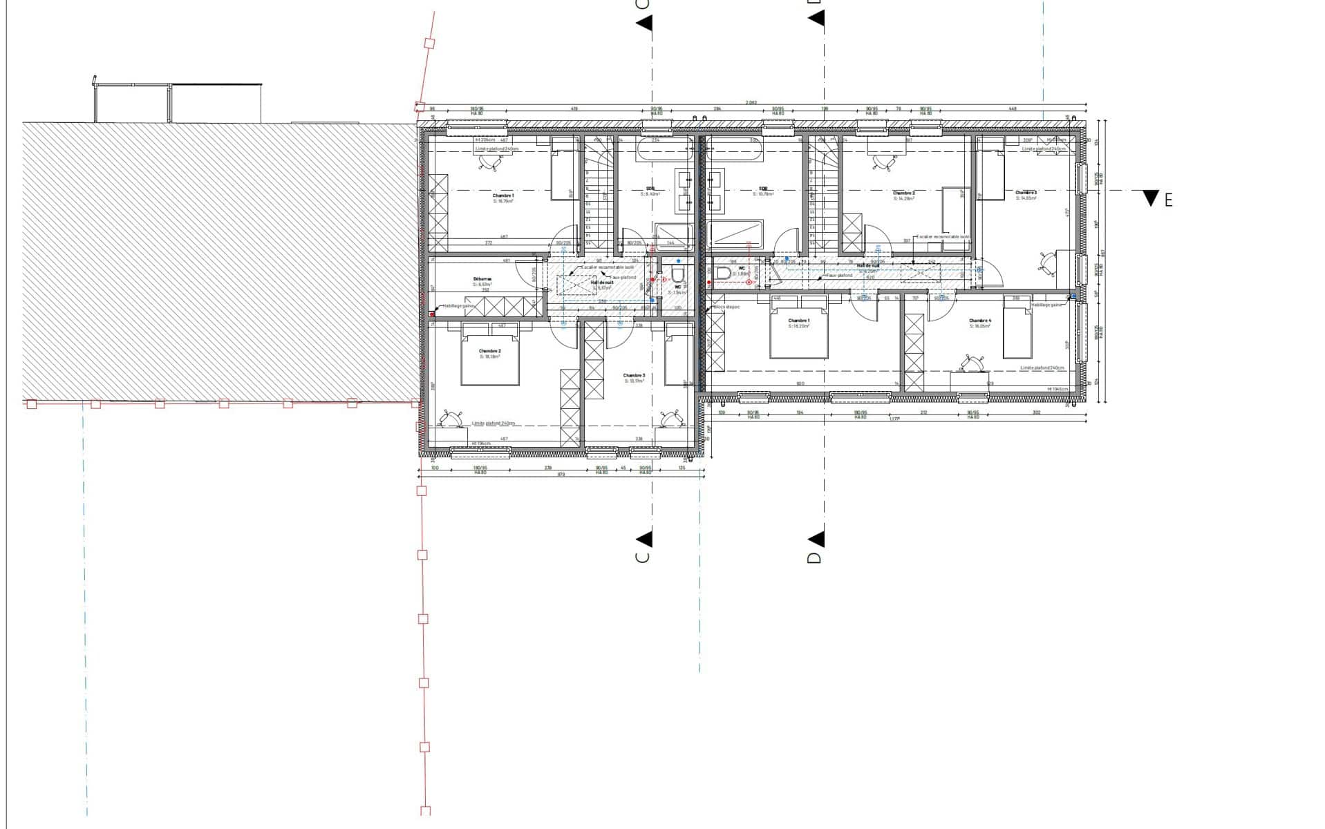
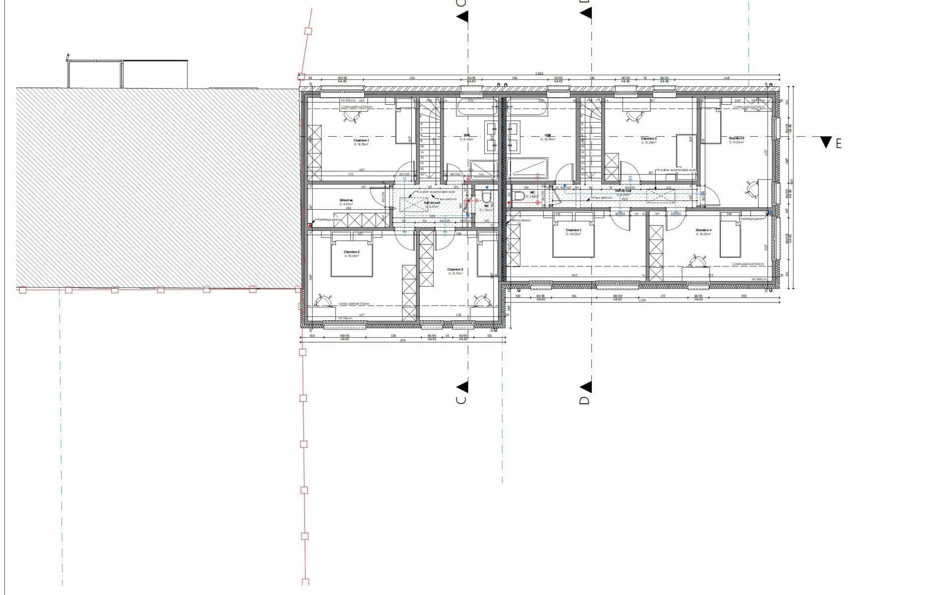
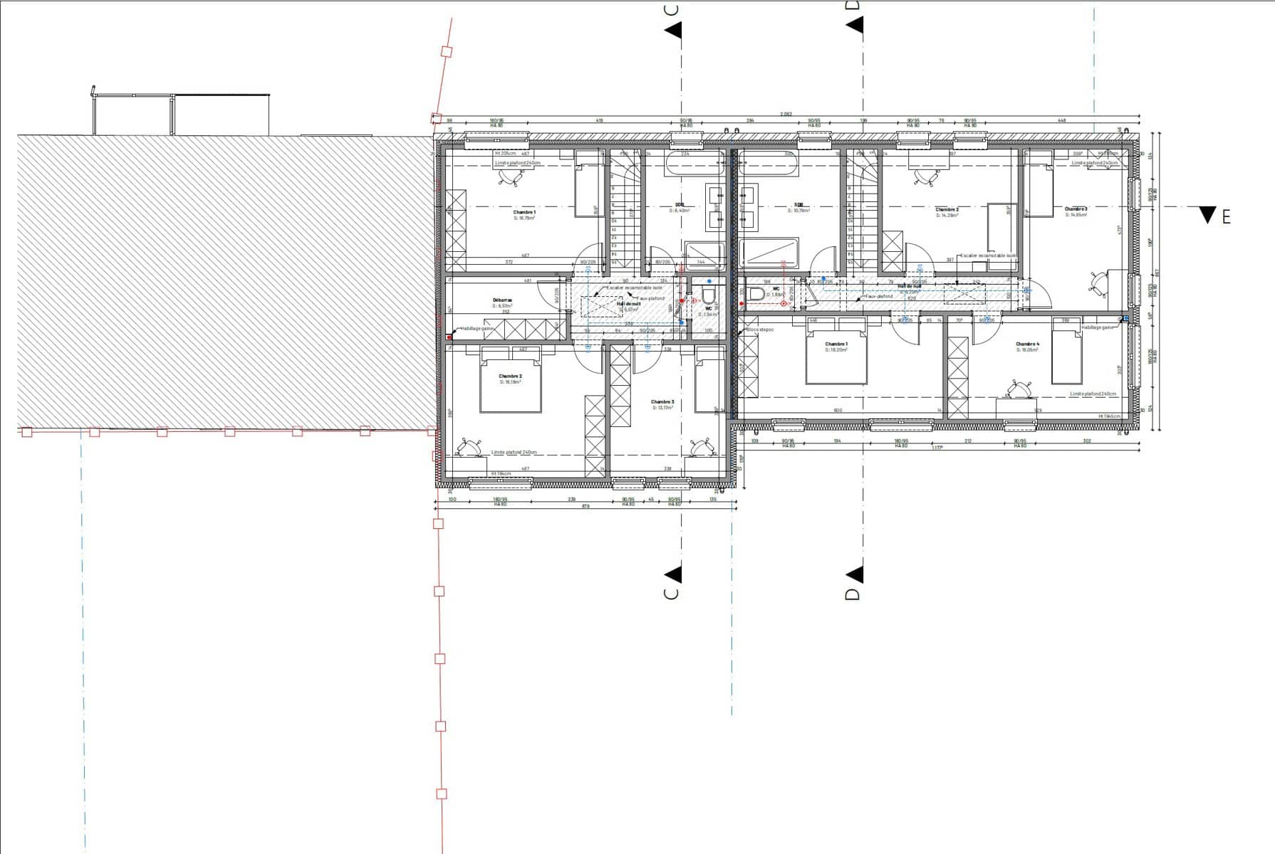
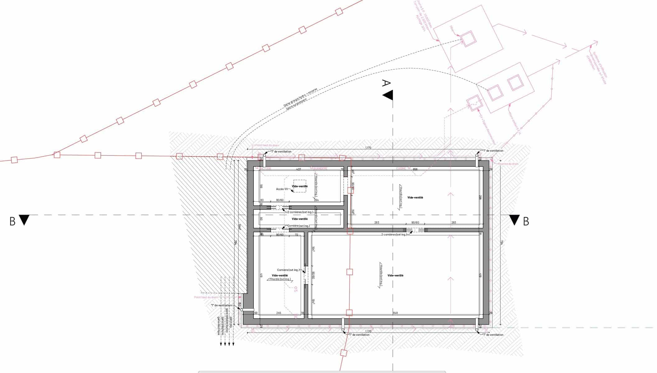
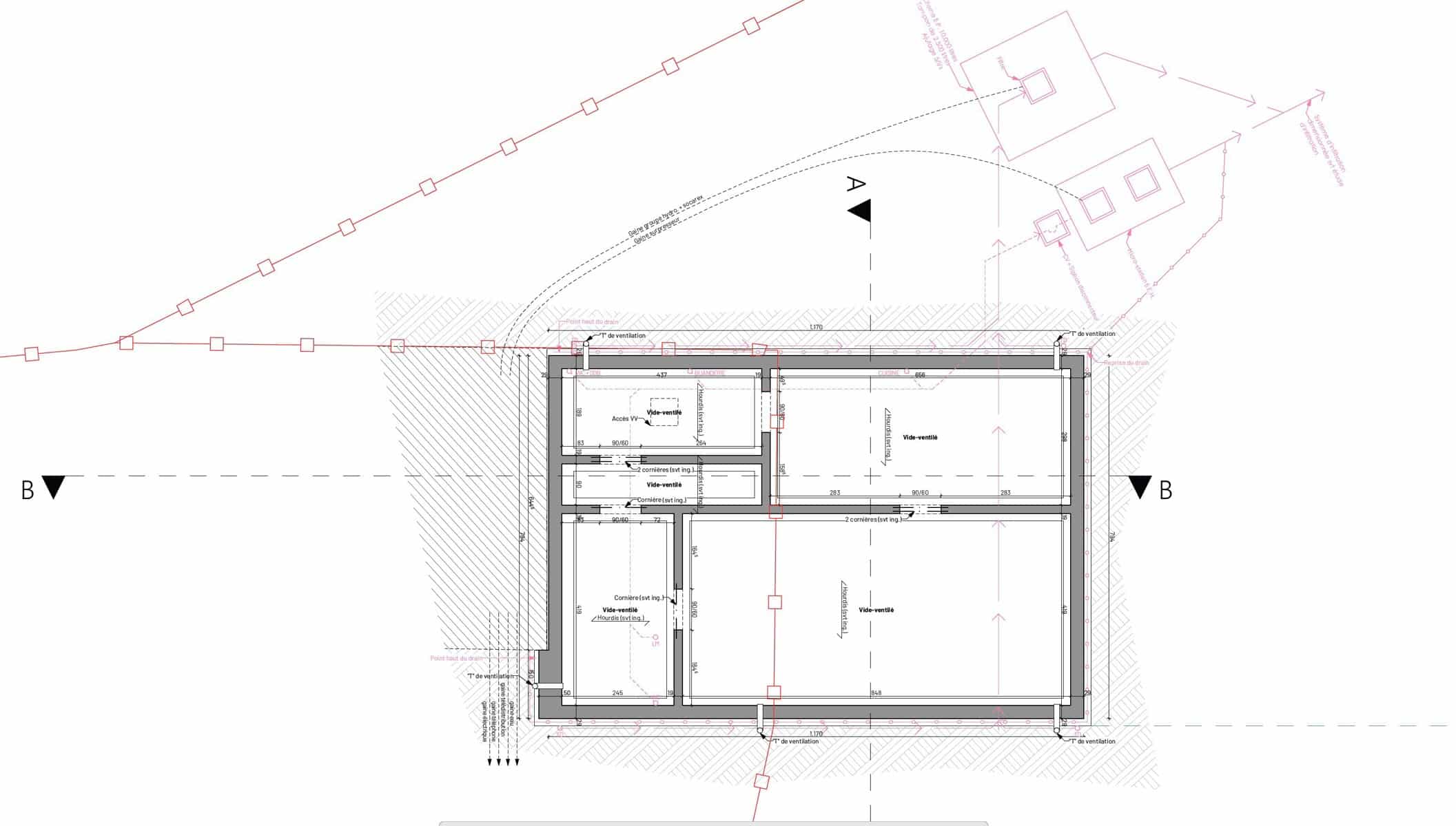
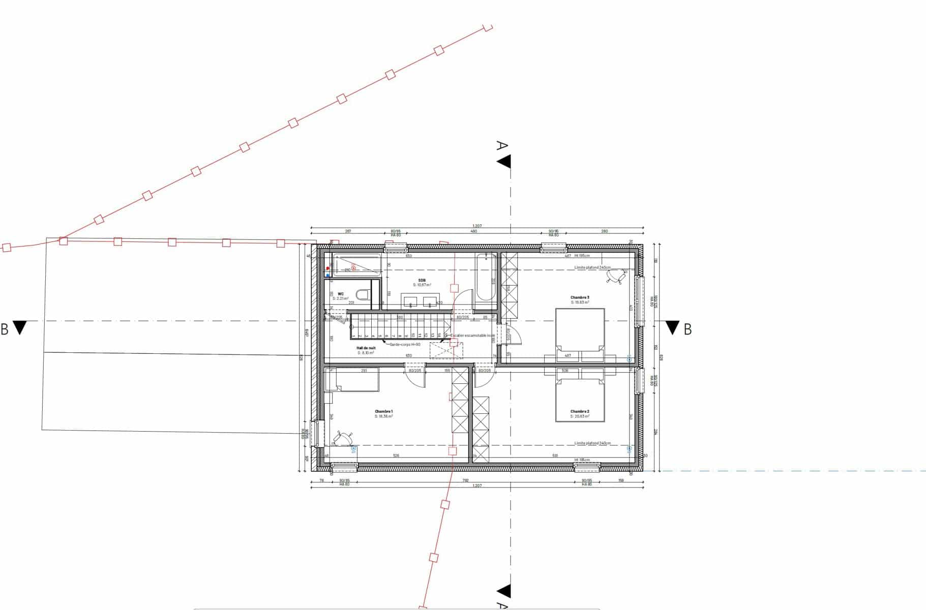
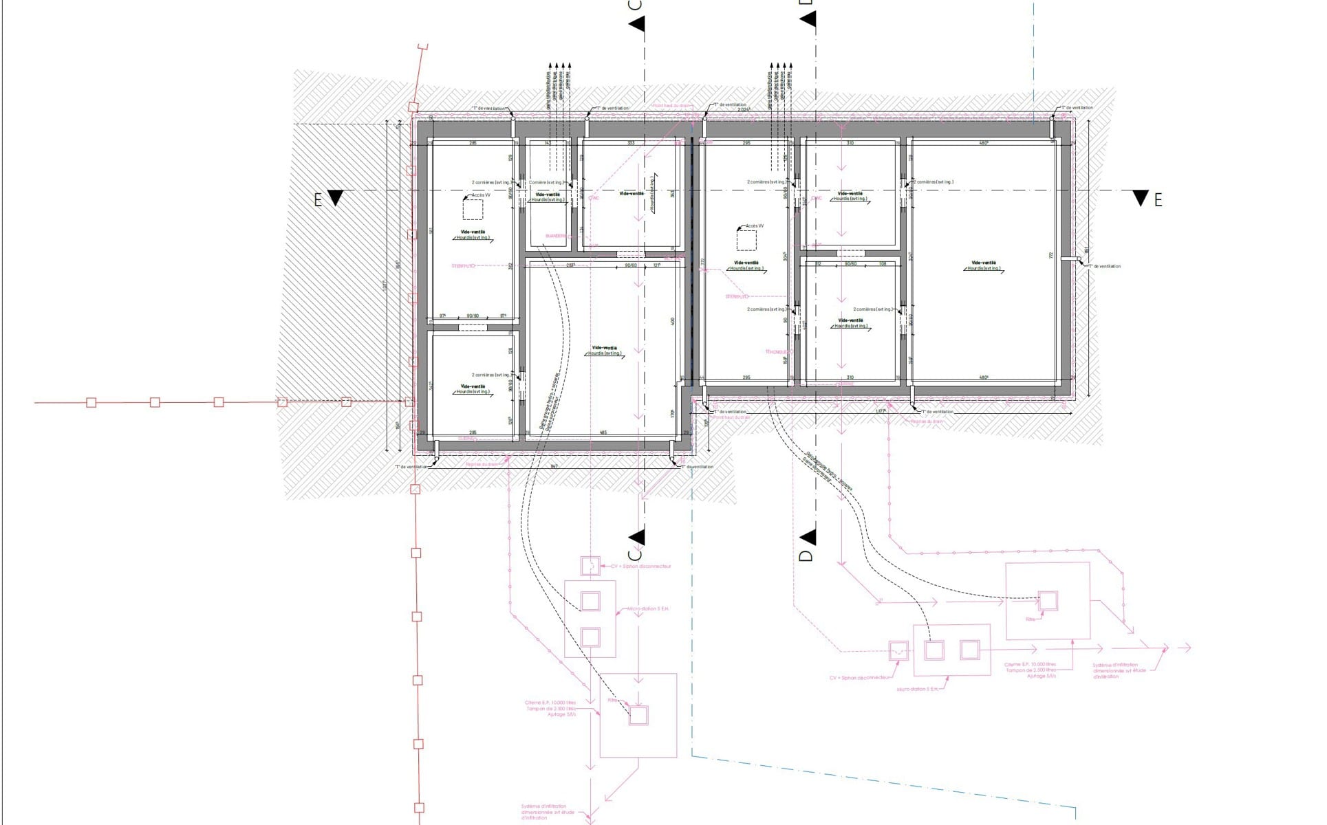
La société HOME'S IMMO a le plaisir de vous proposer ce très beau projet composé de trois beaux terrains plats à bâtir d'une belle superficie de 1178 m², 1176m², et de 307 m² situés dans la commune de JALHAY, plus précisément dans le village très prisé, calme et verdoyant de FOYR. Le permis est déjà octroyé et prévoit la vente de l'ensemble des trois terrains en même temps, on ne peut donc pas vendre les terrains séparément. Amis entrepreneurs, ne tardez pas !!!! Lot 5 : Le terrain fait 1178m² avec un garage déjà construit, il est prévu la réalisation d'une 4 façades (garages/entrepôt entièrement rénové et loué 420 euros/mois), surface habitable de la maison = +- 200m² Lot 4 : Le terrain fait 1176m², il est prévu la réalisation d'une 3 façades, surface habitable de la maison +- 200m² Lot 3 : Le terrain fait 307m², il est prévu une deux façades qui jouxte le lot 4, surface habitable de la maison +- 180m² Des emplacements de parking sont prévus pour les maisons. Plans disponibles sur demande en agence: info@homes-immo.be La caractéristique particulière de ces terrains est qu'un permis d'urbanisme a déjà été accepté pour la construction de 3 belles maisons (permis valable 5 ans). Impétrants, petites démolitions et énergies à prévoir. ANNONCE NON CONTRACTUELLE - SOUS RESERVE D'ACCEPTATION DU PROPRIETAIRE. POUR TOUTES INFOS COMPLÉMENTAIRES : INFO@HOMES-IMMO.BE

Adresse

Route de Foyr 117, 4845 Jalhay, Belgique

Type de bien

Terrain

Prix

399 000 €

Disponibilité

à l'acte

Sup. du terrain

2659 m²

array(132) { ["rank_math_internal_links_processed"]=> array(1) { [0]=> string(1) "1" } ["_thumbnail_id"]=> array(1) { [0]=> string(5) "24614" } ["wpis_locked"]=> array(1) { [0]=> string(1) "0" } ["wpis_id"]=> array(1) { [0]=> string(7) "7224601" } ["wpis_name"]=> array(1) { [0]=> string(26) "ROUTE DE FOYR 117 TERRAINS" } ["wpis_reference"]=> array(1) { [0]=> string(7) "7144987" } ["wpis_category_label"]=> array(1) { [0]=> string(7) "Terrain" } ["wpis_subcategory_label"]=> array(1) { [0]=> string(17) "Terrain à bâtir" } ["wpis_purpose_label"]=> array(1) { [0]=> string(9) "À vendre" } ["wpis_status_label"]=> array(1) { [0]=> string(9) "À vendre" } ["wpis_links_virtualVisit"]=> array(1) { [0]=> NULL } ["wpis_links_video"]=> array(1) { [0]=> NULL } ["wpis_links_model"]=> array(1) { [0]=> NULL } ["wpis_links_appointment"]=> array(1) { [0]=> NULL } ["wpis_links_custom"]=> array(1) { [0]=> NULL } ["wpis_properties_hasChildren"]=> array(1) { [0]=> string(0) "" } ["wpis_properties_hasParent"]=> array(1) { [0]=> string(0) "" } ["wpis_properties_parentId"]=> array(1) { [0]=> NULL } ["wpis_properties_isFavorite"]=> array(1) { [0]=> string(0) "" } ["wpis_properties_isFurnished"]=> array(1) { [0]=> NULL } ["wpis_finance_price"]=> array(1) { [0]=> string(6) "399000" } ["wpis_finance_priceChangedAt"]=> array(1) { [0]=> string(27) "2025-07-18T11:04:29.383000Z" } ["wpis_finance_availableAt"]=> array(1) { [0]=> NULL } ["wpis_finance_availability"]=> array(1) { [0]=> string(9) "à l'acte" } ["wpis_finance_currency"]=> array(1) { [0]=> string(3) "€" } ["wpis_finance_annuityMonthly"]=> array(1) { [0]=> NULL } ["wpis_finance_cadastre"]=> array(1) { [0]=> NULL } ["wpis_finance_propertyTax"]=> array(1) { [0]=> NULL } ["wpis_finance_chargeOwner"]=> array(1) { [0]=> NULL } ["wpis_finance_chargeRenter"]=> array(1) { [0]=> NULL } ["wpis_finance_fieldValue"]=> array(1) { [0]=> NULL } ["wpis_finance_constructionValue"]=> array(1) { [0]=> NULL } ["wpis_finance_notarialDeedValue"]=> array(1) { [0]=> NULL } ["wpis_finance_garageUnitPrice"]=> array(1) { [0]=> NULL } ["wpis_finance_parkingUnitPrice"]=> array(1) { [0]=> NULL } ["wpis_finance_parkingInteriorUnitPrice"]=> array(1) { [0]=> NULL } ["wpis_finance_parkingExteriorUnitPrice"]=> array(1) { [0]=> NULL } ["wpis_finance_offer"]=> array(1) { [0]=> string(0) "" } ["wpis_finance_hidden"]=> array(1) { [0]=> string(0) "" } ["wpis_building_constructionYear"]=> array(1) { [0]=> NULL } ["wpis_building_renovationYear"]=> array(1) { [0]=> NULL } ["wpis_building_orientation"]=> array(1) { [0]=> NULL } ["wpis_building_gardenOrientation"]=> array(1) { [0]=> NULL } ["wpis_building_terraceOrientation"]=> array(1) { [0]=> NULL } ["wpis_building_state"]=> array(1) { [0]=> NULL } ["wpis_areas_total"]=> array(1) { [0]=> NULL } ["wpis_areas_ground"]=> array(1) { [0]=> string(4) "2659" } ["wpis_areas_garden"]=> array(1) { [0]=> NULL } ["wpis_areas_living"]=> array(1) { [0]=> NULL } ["wpis_areas_diningroom"]=> array(1) { [0]=> NULL } ["wpis_areas_kitchen"]=> array(1) { [0]=> NULL } ["wpis_areas_bathroom"]=> array(1) { [0]=> NULL } ["wpis_areas_cellar"]=> array(1) { [0]=> NULL } ["wpis_areas_washroom"]=> array(1) { [0]=> NULL } ["wpis_areas_dressing"]=> array(1) { [0]=> NULL } ["wpis_areas_office"]=> array(1) { [0]=> NULL } ["wpis_areas_bedroom1"]=> array(1) { [0]=> NULL } ["wpis_areas_bedroom2"]=> array(1) { [0]=> NULL } ["wpis_areas_bedroom3"]=> array(1) { [0]=> NULL } ["wpis_areas_bedroom4"]=> array(1) { [0]=> NULL } ["wpis_areas_bedroom5"]=> array(1) { [0]=> NULL } ["wpis_areas_showroom"]=> array(1) { [0]=> NULL } ["wpis_areas_storage"]=> array(1) { [0]=> NULL } ["wpis_areas_terrace"]=> array(1) { [0]=> NULL } ["wpis_areas_manufacturing"]=> array(1) { [0]=> NULL } ["wpis_areas_displayWindow"]=> array(1) { [0]=> NULL } ["wpis_energy_epcCode"]=> array(1) { [0]=> NULL } ["wpis_energy_epcLabel"]=> array(1) { [0]=> NULL } ["wpis_energy_epcValue"]=> array(1) { [0]=> NULL } ["wpis_energy_epcTotal"]=> array(1) { [0]=> NULL } ["wpis_energy_gazEmit"]=> array(1) { [0]=> NULL } ["wpis_energy_heatingType"]=> array(1) { [0]=> NULL } ["wpis_energy_solarElectricity"]=> array(1) { [0]=> NULL } ["wpis_energy_electricityConformity"]=> array(1) { [0]=> NULL } ["wpis_address_street"]=> array(1) { [0]=> string(13) "Route de Foyr" } ["wpis_address_number"]=> array(1) { [0]=> string(3) "117" } ["wpis_address_box"]=> array(1) { [0]=> NULL } ["wpis_address_zip"]=> array(1) { [0]=> string(4) "4845" } ["wpis_address_city"]=> array(1) { [0]=> string(6) "Jalhay" } ["wpis_address_country"]=> array(1) { [0]=> string(8) "Belgique" } ["wpis_address_longitude"]=> array(1) { [0]=> string(8) "5.936763" } ["wpis_address_latitude"]=> array(1) { [0]=> string(9) "50.569676" } ["wpis_proximity_highway"]=> array(1) { [0]=> string(1) "1" } ["wpis_proximity_transports"]=> array(1) { [0]=> string(1) "1" } ["wpis_proximity_station"]=> array(1) { [0]=> NULL } ["wpis_proximity_bus"]=> array(1) { [0]=> NULL } ["wpis_proximity_metro"]=> array(1) { [0]=> NULL } ["wpis_proximity_tram"]=> array(1) { [0]=> NULL } ["wpis_proximity_school"]=> array(1) { [0]=> string(1) "1" } ["wpis_proximity_stores"]=> array(1) { [0]=> string(1) "1" } ["wpis_proximity_sportCenter"]=> array(1) { [0]=> string(1) "1" } ["wpis_proximity_beach"]=> array(1) { [0]=> string(1) "1" } ["wpis_configuration_floorCurrent"]=> array(1) { [0]=> NULL } ["wpis_configuration_floorTotal"]=> array(1) { [0]=> NULL } ["wpis_configuration_bedrooms"]=> array(1) { [0]=> NULL } ["wpis_configuration_kitchens"]=> array(1) { [0]=> NULL } ["wpis_configuration_toilets"]=> array(1) { [0]=> NULL } ["wpis_configuration_bathrooms"]=> array(1) { [0]=> NULL } ["wpis_configuration_showerrooms"]=> array(1) { [0]=> NULL } ["wpis_configuration_garages"]=> array(1) { [0]=> NULL } ["wpis_configuration_terraces"]=> array(1) { [0]=> NULL } ["wpis_configuration_cave"]=> array(1) { [0]=> NULL } ["wpis_configuration_parking"]=> array(1) { [0]=> NULL } ["wpis_configuration_garden"]=> array(1) { [0]=> NULL } ["wpis_files"]=> array(1) { [0]=> string(6) "a:0:{}" } ["wpis_createdAt"]=> array(1) { [0]=> string(27) "2025-10-24T12:34:16.800000Z" } ["wpis_updatedAt"]=> array(1) { [0]=> string(27) "2025-11-03T14:44:43.297000Z" } ["wpis_purpose_id"]=> array(1) { [0]=> string(1) "1" } ["wpis_status_id"]=> array(1) { [0]=> string(1) "1" } ["wpis_description_title"]=> array(1) { [0]=> string(61) "3X TERRAINS A BATIR - PERMIS OCTROYE + GARAGE/ENTREPOT 100m²" } ["wpis_description_base"]=> array(1) { [0]=> NULL } ["wpis_description_short"]=> array(1) { [0]=> string(1444) "La société HOME'S IMMO a le plaisir de vous proposer ce très beau projet composé de trois beaux terrains plats à bâtir d'une belle superficie de 1178 m², 1176m², et de 307 m² situés dans la commune de JALHAY, plus précisément dans le village très prisé, calme et verdoyant de FOYR. Le permis est déjà octroyé et prévoit la vente de l'ensemble des trois terrains en même temps, on ne peut donc pas vendre les terrains séparément. Amis entrepreneurs, ne tardez pas !!!! Lot 5 : Le terrain fait 1178m² avec un garage déjà construit, il est prévu la réalisation d'une 4 façades (garages/entrepôt entièrement rénové et loué 420 euros/mois), surface habitable de la maison = +- 200m² Lot 4 : Le terrain fait 1176m², il est prévu la réalisation d'une 3 façades, surface habitable de la maison +- 200m² Lot 3 : Le terrain fait 307m², il est prévu une deux façades qui jouxte le lot 4, surface habitable de la maison +- 180m² Des emplacements de parking sont prévus pour les maisons. Plans disponibles sur demande en agence: info@homes-immo.be La caractéristique particulière de ces terrains est qu'un permis d'urbanisme a déjà été accepté pour la construction de 3 belles maisons (permis valable 5 ans). Impétrants, petites démolitions et énergies à prévoir. ANNONCE NON CONTRACTUELLE - SOUS RESERVE D'ACCEPTATION DU PROPRIETAIRE. POUR TOUTES INFOS COMPLÉMENTAIRES : INFO@HOMES-IMMO.BE" } ["wpis_description_long"]=> array(1) { [0]=> NULL } ["wpis_amenities_generic"]=> array(1) { [0]=> string(6) "a:0:{}" } ["wpis_amenities_custom"]=> array(1) { [0]=> string(6) "a:0:{}" } ["wpis_agency_id"]=> array(1) { [0]=> string(4) "9721" } ["wpis_agency_name"]=> array(1) { [0]=> string(11) "HOME'S IMMO" } ["wpis_agency_phone"]=> array(1) { [0]=> NULL } ["wpis_agency_email"]=> array(1) { [0]=> NULL } ["wpis_agency_addressFormatted"]=> array(1) { [0]=> NULL } ["wpis_agent_firstname"]=> array(1) { [0]=> string(3) "SRL" } ["wpis_agent_lastname"]=> array(1) { [0]=> string(11) "HOME'S IMMO" } ["wpis_agent_email"]=> array(1) { [0]=> string(18) "info@homes-immo.be" } ["wpis_agent_phone"]=> array(1) { [0]=> string(13) "0494 60 56 82" } ["wpis_agent_role"]=> array(1) { [0]=> string(13) "0494 60 56 82" } ["wpis_agent_picture"]=> array(1) { [0]=> string(62) "https://r2.storagewhise.eu/storage7345/Images/Agents/33483.jpg" } ["wpis_dataHash"]=> array(1) { [0]=> string(32) "5de43b626443065fd71d3a453c9f0132" } ["wpis_picturesTemp"]=> array(1) { [0]=> string(6201) "[{"id":"73181156","title":null,"description":null,"order":"0","filename":"c8065d1fd4b346f68ef56e2797cf291b","format":"jpg","url":"https://r2.storagewhise.eu/storage7345/Pictures/7224601/1600/c8065d1fd4b346f68ef56e2797cf291b.jpg"},{"id":"73181164","title":null,"description":null,"order":"1","filename":"2b18ba49b25b47ea94616e5e2656e20f","format":"jpg","url":"https://r2.storagewhise.eu/storage7345/Pictures/7224601/1600/2b18ba49b25b47ea94616e5e2656e20f.jpg"},{"id":"73181178","title":null,"description":null,"order":"2","filename":"bdaae9f178fb4110ab2712c708114b0c","format":"jpg","url":"https://r2.storagewhise.eu/storage7345/Pictures/7224601/1600/bdaae9f178fb4110ab2712c708114b0c.jpg"},{"id":"73181165","title":null,"description":null,"order":"3","filename":"76102c58e09543c3adfbf6342cdbc1d8","format":"jpg","url":"https://r2.storagewhise.eu/storage7345/Pictures/7224601/1600/76102c58e09543c3adfbf6342cdbc1d8.jpg"},{"id":"73181154","title":null,"description":null,"order":"4","filename":"698772986f9e4dd7a38585e4e34c5a1e","format":"jpg","url":"https://r2.storagewhise.eu/storage7345/Pictures/7224601/1600/698772986f9e4dd7a38585e4e34c5a1e.jpg"},{"id":"73181155","title":null,"description":null,"order":"5","filename":"40ed63c9fd9f444fbde87865f870d7db","format":"jpg","url":"https://r2.storagewhise.eu/storage7345/Pictures/7224601/1600/40ed63c9fd9f444fbde87865f870d7db.jpg"},{"id":"73181152","title":null,"description":null,"order":"6","filename":"dc835bc4358d4d55b922a3f640fe894c","format":"jpg","url":"https://r2.storagewhise.eu/storage7345/Pictures/7224601/1600/dc835bc4358d4d55b922a3f640fe894c.jpg"},{"id":"73181158","title":null,"description":null,"order":"7","filename":"5302638de1884d75acce357dfbc7c2e0","format":"jpg","url":"https://r2.storagewhise.eu/storage7345/Pictures/7224601/1600/5302638de1884d75acce357dfbc7c2e0.jpg"},{"id":"73181159","title":null,"description":null,"order":"8","filename":"f3cee0bf102e4ad4adbe511f2397563d","format":"jpg","url":"https://r2.storagewhise.eu/storage7345/Pictures/7224601/1600/f3cee0bf102e4ad4adbe511f2397563d.jpg"},{"id":"73181157","title":null,"description":null,"order":"9","filename":"be6e7bcfb5314258adeb3f2639aba835","format":"jpg","url":"https://r2.storagewhise.eu/storage7345/Pictures/7224601/1600/be6e7bcfb5314258adeb3f2639aba835.jpg"},{"id":"73181160","title":null,"description":null,"order":"10","filename":"d11f2dd6aedb4d0cb4e5a1a271b32085","format":"jpg","url":"https://r2.storagewhise.eu/storage7345/Pictures/7224601/1600/d11f2dd6aedb4d0cb4e5a1a271b32085.jpg"},{"id":"73181161","title":null,"description":null,"order":"11","filename":"e1e530018d59419db0114b11a0524ae4","format":"jpg","url":"https://r2.storagewhise.eu/storage7345/Pictures/7224601/1600/e1e530018d59419db0114b11a0524ae4.jpg"},{"id":"73181162","title":null,"description":null,"order":"12","filename":"aefe4626c81f4a859d8d8bf9134f637a","format":"jpg","url":"https://r2.storagewhise.eu/storage7345/Pictures/7224601/1600/aefe4626c81f4a859d8d8bf9134f637a.jpg"},{"id":"73181177","title":null,"description":null,"order":"13","filename":"cb3a50b5db014a18861dfd53cb2bf014","format":"jpg","url":"https://r2.storagewhise.eu/storage7345/Pictures/7224601/1600/cb3a50b5db014a18861dfd53cb2bf014.jpg"},{"id":"73181153","title":null,"description":null,"order":"14","filename":"dd75b1b711e84a5ea4091eae50c7060d","format":"jpg","url":"https://r2.storagewhise.eu/storage7345/Pictures/7224601/1600/dd75b1b711e84a5ea4091eae50c7060d.jpg"},{"id":"73181163","title":null,"description":null,"order":"15","filename":"e12fc6f044434701b777cefeefe002d0","format":"jpg","url":"https://r2.storagewhise.eu/storage7345/Pictures/7224601/1600/e12fc6f044434701b777cefeefe002d0.jpg"},{"id":"73181176","title":null,"description":null,"order":"16","filename":"e44961fd20a040099f2c383170cbf731","format":"jpg","url":"https://r2.storagewhise.eu/storage7345/Pictures/7224601/1600/e44961fd20a040099f2c383170cbf731.jpg"},{"id":"73181175","title":null,"description":null,"order":"17","filename":"5019636d098c4104b48b1132ad85225b","format":"jpg","url":"https://r2.storagewhise.eu/storage7345/Pictures/7224601/1600/5019636d098c4104b48b1132ad85225b.jpg"},{"id":"73181174","title":null,"description":null,"order":"18","filename":"9f69eddab1bd490087ab12bc0478b7a9","format":"jpg","url":"https://r2.storagewhise.eu/storage7345/Pictures/7224601/1600/9f69eddab1bd490087ab12bc0478b7a9.jpg"},{"id":"73181173","title":null,"description":null,"order":"19","filename":"90e928073b4f4d11bc740ad2d7059d5b","format":"jpg","url":"https://r2.storagewhise.eu/storage7345/Pictures/7224601/1600/90e928073b4f4d11bc740ad2d7059d5b.jpg"},{"id":"73181172","title":null,"description":null,"order":"20","filename":"71d0ef1abebb43d79a53454767b862d6","format":"jpg","url":"https://r2.storagewhise.eu/storage7345/Pictures/7224601/1600/71d0ef1abebb43d79a53454767b862d6.jpg"},{"id":"73181171","title":null,"description":null,"order":"21","filename":"6cb5d9dd79704ee2b4ff38e3548b89fb","format":"jpg","url":"https://r2.storagewhise.eu/storage7345/Pictures/7224601/1600/6cb5d9dd79704ee2b4ff38e3548b89fb.jpg"},{"id":"73181170","title":null,"description":null,"order":"22","filename":"26ef8aebfae843fc872d2151eb77ea10","format":"jpg","url":"https://r2.storagewhise.eu/storage7345/Pictures/7224601/1600/26ef8aebfae843fc872d2151eb77ea10.jpg"},{"id":"73181169","title":null,"description":null,"order":"23","filename":"cf178f8ba5234eca97bff1ab0dc5f30c","format":"jpg","url":"https://r2.storagewhise.eu/storage7345/Pictures/7224601/1600/cf178f8ba5234eca97bff1ab0dc5f30c.jpg"},{"id":"73181168","title":null,"description":null,"order":"24","filename":"189a542466604d6da52fd42be40c0a7e","format":"jpg","url":"https://r2.storagewhise.eu/storage7345/Pictures/7224601/1600/189a542466604d6da52fd42be40c0a7e.jpg"},{"id":"73181167","title":null,"description":null,"order":"25","filename":"7ab9a96a03f04e0f863aa8e57bc64be9","format":"jpg","url":"https://r2.storagewhise.eu/storage7345/Pictures/7224601/1600/7ab9a96a03f04e0f863aa8e57bc64be9.jpg"},{"id":"73181166","title":null,"description":null,"order":"26","filename":"2420560181704e7eb2c6095e84289e81","format":"jpg","url":"https://r2.storagewhise.eu/storage7345/Pictures/7224601/1600/2420560181704e7eb2c6095e84289e81.jpg"}]" } ["wpis_picturesHashChanged"]=> array(1) { [0]=> string(0) "" } ["wpis_picturesHash"]=> array(1) { [0]=> string(32) "cfc8523624b821fea2aab2e9cb47f389" } ["wpis_completed"]=> array(1) { [0]=> string(1) "1" } ["_wp_old_slug"]=> array(1) { [0]=> string(34) "7224601-route-de-foyr-117-terrains" } }
Estimation gratuite