Menu

Commerce

4802 Verviers Heusy

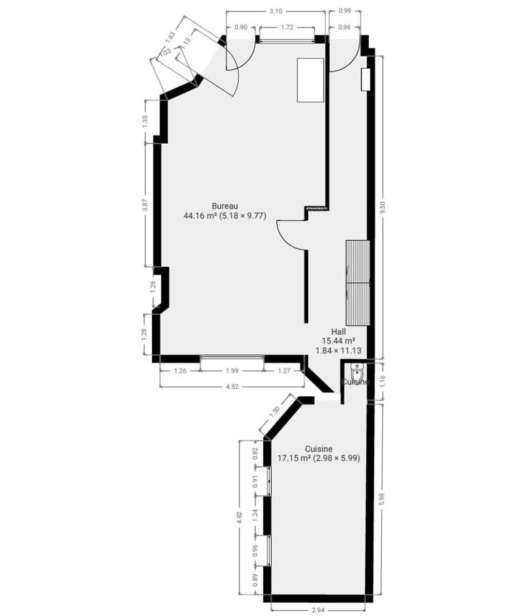
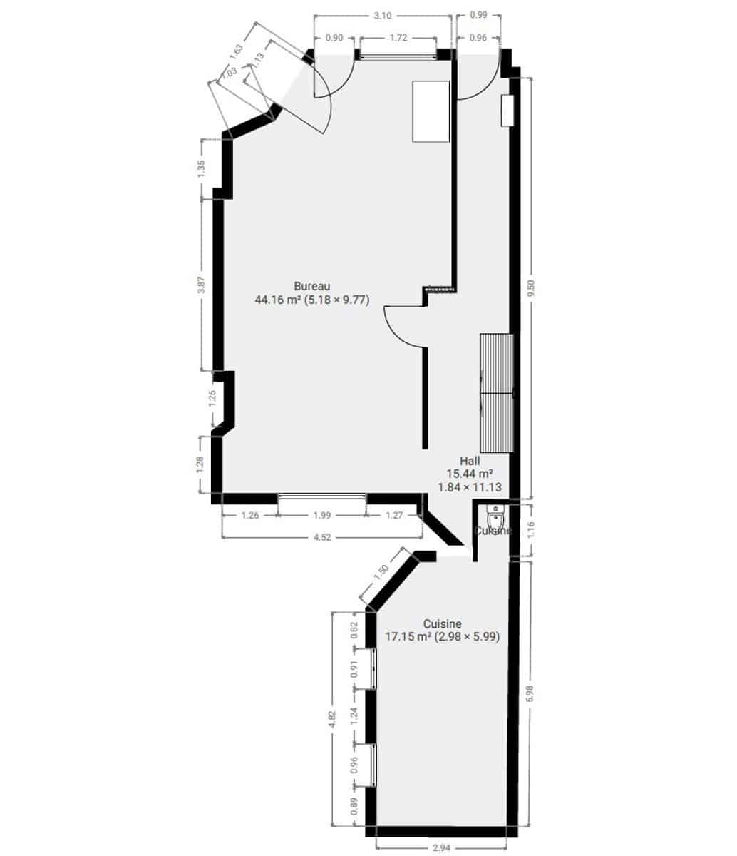
61 m²

HOME'S IMMO

Contacter HOME'S IMMO

info@homes-immo.be

Appeler HOME'S IMMO

0494 60 56 82
Description
4802 HEUSY – La société HOME'S IMMO a le plaisir de vous proposer à la location ce magnifique commerce / espace bureaux entièrement rénové (travaux toujours en cours) et lumineux, idéalement situé à 2 minutes de toutes les facilités : commerces, commodités, bus, etc. Situation stratégique ! Le commerce est situé au rez-de-chaussée : il bénéficie d'une entrée privative, d’un très bel espace de travail de 44 m², entièrement vitré en façade, ainsi que d’un espace cuisine de 17 m² (équipement de cuisine à charge du futur locataire), d’une toilette, d’une terrasse et d’un jardin. Loyer demandé : 800 €/mois Aucune charge pour les communs. Participation à hauteur d’1/3 au précompte immobilier. Aspects techniques : volets électriques, chaudière individuelle au gaz, compteurs d’électricité, d’eau et de gaz séparés, raccordement aux égouts, châssis PVC à double vitrage. Disponible dans un 1 mois. Annonce non contractuelle – sous réserve d’acceptation du propriétaire. Pour plus d’informations, merci de nous contacter uniquement à l’adresse : info@homes.immo.be .

Adresse

Avenue Reine Astrid 240, 4802 Verviers Heusy, Belgique

Type de bien

Commerce

État du bien

Remis à neuf

Chauffage

gaz

Prix

800 €

Disponibilité

à convenir

Type de chauffage

gaz

Sup. totale

61 m²

Cuisine

18 m²

Toilettes

1

Bureau

Double Vitrage

Égouts

Electricité

Gaz

Accès à l'eau

array(133) { ["rank_math_internal_links_processed"]=> array(1) { [0]=> string(1) "1" } ["_thumbnail_id"]=> array(1) { [0]=> string(5) "27744" } ["wpis_locked"]=> array(1) { [0]=> string(1) "0" } ["wpis_id"]=> array(1) { [0]=> string(7) "7254143" } ["wpis_name"]=> array(1) { [0]=> string(19) "Avenue Reine Astrid" } ["wpis_reference"]=> array(1) { [0]=> NULL } ["wpis_category_label"]=> array(1) { [0]=> string(8) "Commerce" } ["wpis_subcategory_label"]=> array(1) { [0]=> string(14) "Rez commercial" } ["wpis_purpose_label"]=> array(1) { [0]=> string(8) "À louer" } ["wpis_status_label"]=> array(1) { [0]=> string(8) "À louer" } ["wpis_links_virtualVisit"]=> array(1) { [0]=> NULL } ["wpis_links_video"]=> array(1) { [0]=> NULL } ["wpis_links_model"]=> array(1) { [0]=> NULL } ["wpis_links_appointment"]=> array(1) { [0]=> NULL } ["wpis_links_custom"]=> array(1) { [0]=> NULL } ["wpis_properties_hasChildren"]=> array(1) { [0]=> string(0) "" } ["wpis_properties_hasParent"]=> array(1) { [0]=> string(0) "" } ["wpis_properties_parentId"]=> array(1) { [0]=> NULL } ["wpis_properties_isFavorite"]=> array(1) { [0]=> string(0) "" } ["wpis_properties_isFurnished"]=> array(1) { [0]=> NULL } ["wpis_finance_price"]=> array(1) { [0]=> string(3) "800" } ["wpis_finance_priceChangedAt"]=> array(1) { [0]=> string(27) "2026-02-04T09:27:27.183000Z" } ["wpis_finance_availableAt"]=> array(1) { [0]=> NULL } ["wpis_finance_availability"]=> array(1) { [0]=> string(11) "à convenir" } ["wpis_finance_currency"]=> array(1) { [0]=> string(3) "€" } ["wpis_finance_annuityMonthly"]=> array(1) { [0]=> NULL } ["wpis_finance_cadastre"]=> array(1) { [0]=> NULL } ["wpis_finance_propertyTax"]=> array(1) { [0]=> NULL } ["wpis_finance_chargeOwner"]=> array(1) { [0]=> NULL } ["wpis_finance_chargeRenter"]=> array(1) { [0]=> NULL } ["wpis_finance_fieldValue"]=> array(1) { [0]=> NULL } ["wpis_finance_constructionValue"]=> array(1) { [0]=> NULL } ["wpis_finance_notarialDeedValue"]=> array(1) { [0]=> NULL } ["wpis_finance_garageUnitPrice"]=> array(1) { [0]=> NULL } ["wpis_finance_parkingUnitPrice"]=> array(1) { [0]=> NULL } ["wpis_finance_parkingInteriorUnitPrice"]=> array(1) { [0]=> NULL } ["wpis_finance_parkingExteriorUnitPrice"]=> array(1) { [0]=> NULL } ["wpis_finance_offer"]=> array(1) { [0]=> string(0) "" } ["wpis_finance_hidden"]=> array(1) { [0]=> string(0) "" } ["wpis_building_constructionYear"]=> array(1) { [0]=> NULL } ["wpis_building_renovationYear"]=> array(1) { [0]=> NULL } ["wpis_building_orientation"]=> array(1) { [0]=> NULL } ["wpis_building_gardenOrientation"]=> array(1) { [0]=> NULL } ["wpis_building_terraceOrientation"]=> array(1) { [0]=> NULL } ["wpis_building_state"]=> array(1) { [0]=> string(13) "Remis à neuf" } ["wpis_areas_total"]=> array(1) { [0]=> string(2) "61" } ["wpis_areas_ground"]=> array(1) { [0]=> NULL } ["wpis_areas_garden"]=> array(1) { [0]=> NULL } ["wpis_areas_living"]=> array(1) { [0]=> NULL } ["wpis_areas_diningroom"]=> array(1) { [0]=> NULL } ["wpis_areas_kitchen"]=> array(1) { [0]=> string(2) "18" } ["wpis_areas_bathroom"]=> array(1) { [0]=> NULL } ["wpis_areas_cellar"]=> array(1) { [0]=> NULL } ["wpis_areas_washroom"]=> array(1) { [0]=> NULL } ["wpis_areas_dressing"]=> array(1) { [0]=> NULL } ["wpis_areas_office"]=> array(1) { [0]=> NULL } ["wpis_areas_bedroom1"]=> array(1) { [0]=> NULL } ["wpis_areas_bedroom2"]=> array(1) { [0]=> NULL } ["wpis_areas_bedroom3"]=> array(1) { [0]=> NULL } ["wpis_areas_bedroom4"]=> array(1) { [0]=> NULL } ["wpis_areas_bedroom5"]=> array(1) { [0]=> NULL } ["wpis_areas_showroom"]=> array(1) { [0]=> NULL } ["wpis_areas_storage"]=> array(1) { [0]=> NULL } ["wpis_areas_terrace"]=> array(1) { [0]=> NULL } ["wpis_areas_manufacturing"]=> array(1) { [0]=> NULL } ["wpis_areas_displayWindow"]=> array(1) { [0]=> NULL } ["wpis_energy_epcCode"]=> array(1) { [0]=> NULL } ["wpis_energy_epcLabel"]=> array(1) { [0]=> NULL } ["wpis_energy_epcValue"]=> array(1) { [0]=> NULL } ["wpis_energy_epcTotal"]=> array(1) { [0]=> NULL } ["wpis_energy_gazEmit"]=> array(1) { [0]=> NULL } ["wpis_energy_heatingType"]=> array(1) { [0]=> string(3) "gaz" } ["wpis_energy_solarElectricity"]=> array(1) { [0]=> NULL } ["wpis_energy_electricityConformity"]=> array(1) { [0]=> NULL } ["wpis_address_street"]=> array(1) { [0]=> string(19) "Avenue Reine Astrid" } ["wpis_address_number"]=> array(1) { [0]=> string(3) "240" } ["wpis_address_box"]=> array(1) { [0]=> NULL } ["wpis_address_zip"]=> array(1) { [0]=> string(4) "4802" } ["wpis_address_city"]=> array(1) { [0]=> string(14) "Verviers Heusy" } ["wpis_address_country"]=> array(1) { [0]=> string(8) "Belgique" } ["wpis_address_longitude"]=> array(1) { [0]=> string(9) "5.8862063" } ["wpis_address_latitude"]=> array(1) { [0]=> string(10) "50.5835065" } ["wpis_proximity_highway"]=> array(1) { [0]=> string(1) "1" } ["wpis_proximity_transports"]=> array(1) { [0]=> string(1) "1" } ["wpis_proximity_station"]=> array(1) { [0]=> NULL } ["wpis_proximity_bus"]=> array(1) { [0]=> NULL } ["wpis_proximity_metro"]=> array(1) { [0]=> NULL } ["wpis_proximity_tram"]=> array(1) { [0]=> NULL } ["wpis_proximity_school"]=> array(1) { [0]=> string(1) "1" } ["wpis_proximity_stores"]=> array(1) { [0]=> string(1) "1" } ["wpis_proximity_sportCenter"]=> array(1) { [0]=> string(1) "1" } ["wpis_proximity_beach"]=> array(1) { [0]=> string(1) "1" } ["wpis_configuration_floorCurrent"]=> array(1) { [0]=> string(1) "0" } ["wpis_configuration_floorTotal"]=> array(1) { [0]=> string(1) "0" } ["wpis_configuration_bedrooms"]=> array(1) { [0]=> NULL } ["wpis_configuration_kitchens"]=> array(1) { [0]=> NULL } ["wpis_configuration_toilets"]=> array(1) { [0]=> string(1) "1" } ["wpis_configuration_bathrooms"]=> array(1) { [0]=> NULL } ["wpis_configuration_showerrooms"]=> array(1) { [0]=> NULL } ["wpis_configuration_garages"]=> array(1) { [0]=> string(1) "0" } ["wpis_configuration_terraces"]=> array(1) { [0]=> NULL } ["wpis_configuration_cave"]=> array(1) { [0]=> NULL } ["wpis_configuration_parking"]=> array(1) { [0]=> string(0) "" } ["wpis_configuration_garden"]=> array(1) { [0]=> NULL } ["wpis_files"]=> array(1) { [0]=> string(6) "a:0:{}" } ["wpis_createdAt"]=> array(1) { [0]=> string(27) "2025-11-13T14:12:14.660000Z" } ["wpis_updatedAt"]=> array(1) { [0]=> string(27) "2026-03-23T12:03:03.030000Z" } ["wpis_purpose_id"]=> array(1) { [0]=> string(1) "2" } ["wpis_status_id"]=> array(1) { [0]=> string(1) "2" } ["wpis_description_title"]=> array(1) { [0]=> string(59) "COMMERCE - REMIS A NEUF 2025 - COMPTEURS SEPARES - JARDIN -" } ["wpis_description_base"]=> array(1) { [0]=> NULL } ["wpis_description_short"]=> array(1) { [0]=> string(1144) "4802 HEUSY – La société HOME'S IMMO a le plaisir de vous proposer à la location ce magnifique commerce / espace bureaux entièrement rénové (travaux toujours en cours) et lumineux, idéalement situé à 2 minutes de toutes les facilités : commerces, commodités, bus, etc. Situation stratégique ! Le commerce est situé au rez-de-chaussée : il bénéficie d'une entrée privative, d’un très bel espace de travail de 44 m², entièrement vitré en façade, ainsi que d’un espace cuisine de 17 m² (équipement de cuisine à charge du futur locataire), d’une toilette, d’une terrasse et d’un jardin. Loyer demandé : 800 €/mois Aucune charge pour les communs. Participation à hauteur d’1/3 au précompte immobilier. Aspects techniques : volets électriques, chaudière individuelle au gaz, compteurs d’électricité, d’eau et de gaz séparés, raccordement aux égouts, châssis PVC à double vitrage. Disponible dans un 1 mois. Annonce non contractuelle – sous réserve d’acceptation du propriétaire. Pour plus d’informations, merci de nous contacter uniquement à l’adresse : info@homes.immo.be ." } ["wpis_description_long"]=> array(1) { [0]=> NULL } ["wpis_amenities_generic"]=> array(1) { [0]=> string(132) "a:6:{i:0;s:6:"Bureau";i:1;s:14:"Double Vitrage";i:2;s:7:"Égouts";i:3;s:12:"Electricité";i:4;s:3:"Gaz";i:5;s:15:"Accès à l'eau";}" } ["wpis_amenities_custom"]=> array(1) { [0]=> string(6) "a:0:{}" } ["wpis_agency_id"]=> array(1) { [0]=> string(4) "9721" } ["wpis_agency_name"]=> array(1) { [0]=> string(11) "HOME'S IMMO" } ["wpis_agency_phone"]=> array(1) { [0]=> NULL } ["wpis_agency_email"]=> array(1) { [0]=> NULL } ["wpis_agency_addressFormatted"]=> array(1) { [0]=> NULL } ["wpis_agent_firstname"]=> array(1) { [0]=> string(3) "SRL" } ["wpis_agent_lastname"]=> array(1) { [0]=> string(11) "HOME'S IMMO" } ["wpis_agent_email"]=> array(1) { [0]=> string(18) "info@homes-immo.be" } ["wpis_agent_phone"]=> array(1) { [0]=> string(13) "0494 60 56 82" } ["wpis_agent_role"]=> array(1) { [0]=> string(13) "0494 60 56 82" } ["wpis_agent_picture"]=> array(1) { [0]=> string(62) "https://r2.storagewhise.eu/storage7345/Images/Agents/33483.jpg" } ["wpis_unmapped"]=> array(1) { [0]=> string(6) "a:0:{}" } ["wpis_dataHash"]=> array(1) { [0]=> string(32) "b12b1e1d619523db9c467943dcd315b0" } ["wpis_picturesTemp"]=> array(1) { [0]=> string(4131) "[{"id":"73645934","title":null,"description":null,"order":"0","filename":"e3434cf55d2d4cbaaae7d244e6bad409","format":"jpg","url":"https://r2.storagewhise.eu/storage7345/Pictures/7254143/1600/e3434cf55d2d4cbaaae7d244e6bad409.jpg"},{"id":"75647462","title":null,"description":null,"order":"1","filename":"5c150601a4f14149982d227a082bdda6","format":"jpg","url":"https://r2.storagewhise.eu/storage7345/Pictures/7254143/1600/5c150601a4f14149982d227a082bdda6.jpg"},{"id":"75647461","title":null,"description":null,"order":"2","filename":"125c896d20e34df38652dba495fe2786","format":"jpg","url":"https://r2.storagewhise.eu/storage7345/Pictures/7254143/1600/125c896d20e34df38652dba495fe2786.jpg"},{"id":"75647453","title":null,"description":null,"order":"3","filename":"39f2bb36461041078798c21b39981ccb","format":"jpg","url":"https://r2.storagewhise.eu/storage7345/Pictures/7254143/1600/39f2bb36461041078798c21b39981ccb.jpg"},{"id":"75647454","title":null,"description":null,"order":"4","filename":"dc1f00e6e21345fd8708903fdb4b221c","format":"jpg","url":"https://r2.storagewhise.eu/storage7345/Pictures/7254143/1600/dc1f00e6e21345fd8708903fdb4b221c.jpg"},{"id":"75647455","title":null,"description":null,"order":"5","filename":"11c9591b381f4dcfb265eda403b8760e","format":"jpg","url":"https://r2.storagewhise.eu/storage7345/Pictures/7254143/1600/11c9591b381f4dcfb265eda403b8760e.jpg"},{"id":"75647456","title":null,"description":null,"order":"6","filename":"3767a6229205485eb34898155901aeab","format":"jpg","url":"https://r2.storagewhise.eu/storage7345/Pictures/7254143/1600/3767a6229205485eb34898155901aeab.jpg"},{"id":"75647457","title":null,"description":null,"order":"7","filename":"b29e4203d38a4c458686b7f84870ac23","format":"jpg","url":"https://r2.storagewhise.eu/storage7345/Pictures/7254143/1600/b29e4203d38a4c458686b7f84870ac23.jpg"},{"id":"75647458","title":null,"description":null,"order":"8","filename":"93e9bfb1cd1042c48f03260e7d7afe22","format":"jpg","url":"https://r2.storagewhise.eu/storage7345/Pictures/7254143/1600/93e9bfb1cd1042c48f03260e7d7afe22.jpg"},{"id":"75647459","title":null,"description":null,"order":"9","filename":"2644dd7bca1640399030d5e283f7dd3a","format":"jpg","url":"https://r2.storagewhise.eu/storage7345/Pictures/7254143/1600/2644dd7bca1640399030d5e283f7dd3a.jpg"},{"id":"75647460","title":null,"description":null,"order":"10","filename":"6363b59367e04a4aa65ac552ed453ad2","format":"jpg","url":"https://r2.storagewhise.eu/storage7345/Pictures/7254143/1600/6363b59367e04a4aa65ac552ed453ad2.jpg"},{"id":"75647463","title":null,"description":null,"order":"11","filename":"31e240e3fbc94e0b88e64560c9b8800e","format":"jpg","url":"https://r2.storagewhise.eu/storage7345/Pictures/7254143/1600/31e240e3fbc94e0b88e64560c9b8800e.jpg"},{"id":"75647465","title":null,"description":null,"order":"12","filename":"7bde129e972545a8a0dac982cad4b539","format":"jpg","url":"https://r2.storagewhise.eu/storage7345/Pictures/7254143/1600/7bde129e972545a8a0dac982cad4b539.jpg"},{"id":"75647464","title":null,"description":null,"order":"13","filename":"f9646519d2e847a69174af6983602680","format":"jpg","url":"https://r2.storagewhise.eu/storage7345/Pictures/7254143/1600/f9646519d2e847a69174af6983602680.jpg"},{"id":"73645924","title":null,"description":null,"order":"14","filename":"56430f02a66d429db2b2d21d8b9c4bb3","format":"jpg","url":"https://r2.storagewhise.eu/storage7345/Pictures/7254143/1600/56430f02a66d429db2b2d21d8b9c4bb3.jpg"},{"id":"73645935","title":null,"description":null,"order":"15","filename":"44a5f5f68213437eb7b2477fb03f3e40","format":"jpg","url":"https://r2.storagewhise.eu/storage7345/Pictures/7254143/1600/44a5f5f68213437eb7b2477fb03f3e40.jpg"},{"id":"75576144","title":null,"description":null,"order":"16","filename":"13b922bf62ab49a785fdd9e0f19c32e3","format":"jpg","url":"https://r2.storagewhise.eu/storage7345/Pictures/7254143/1600/13b922bf62ab49a785fdd9e0f19c32e3.jpg"},{"id":"73645871","title":null,"description":null,"order":"17","filename":"56a80bd2cd144238901a08c2ac4bb7f7","format":"jpg","url":"https://r2.storagewhise.eu/storage7345/Pictures/7254143/1600/56a80bd2cd144238901a08c2ac4bb7f7.jpg"}]" } ["wpis_picturesHashChanged"]=> array(1) { [0]=> string(0) "" } ["wpis_picturesHash"]=> array(1) { [0]=> string(32) "3858ad4b6dd7e395030b9d52b0473f27" } ["wpis_completed"]=> array(1) { [0]=> string(1) "1" } ["_wp_old_slug"]=> array(1) { [0]=> string(27) "7254143-avenue-reine-astrid" } }
Estimation gratuite