Menu

Maison

4800 Verviers

150 m²
4
1

HOME'S IMMO

Contacter HOME'S IMMO

info@homes-immo.be

Appeler HOME'S IMMO

0494 60 56 82
Description
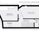
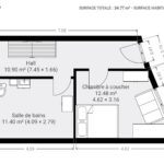
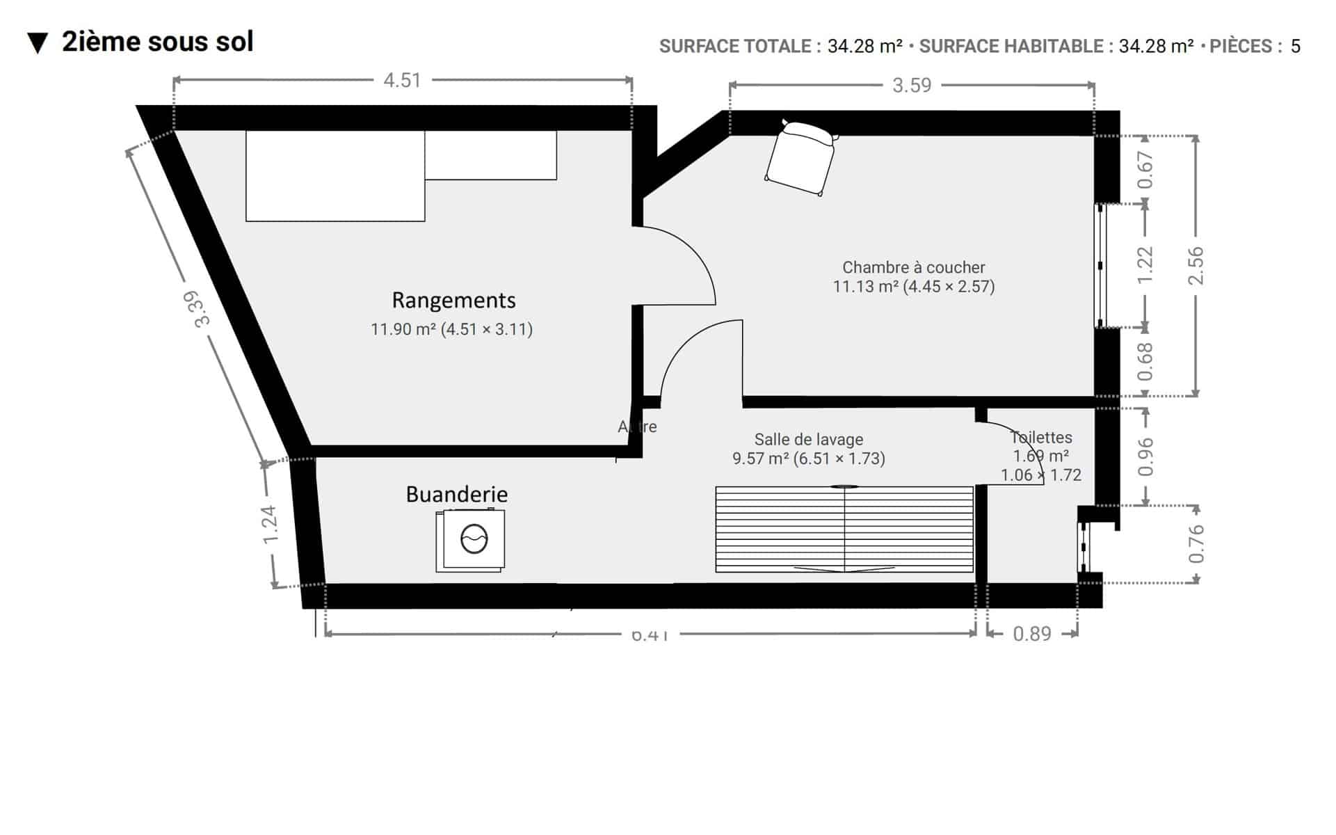
!!! 3% DE FRAIS D'ACHAT !!! La société HOME'S IMMO a le plaisir de vous proposer à la vente cette grande maison 3 façades rénovée en 2017-2019, elle est idéalement située sur les hauteurs de Verviers à proximité de toutes les facilités ! (commerces, bus, etc…) Le bien est situé Avenue Eugène Mullendorfd 83 - 4800 VERVIERS. Le bien bénéficie de 150 m² selon PEB, Il est disposé comme suit : Au RDC : un hall d'entrée, une chambre à coucher, une salle de bains équipée. Au +1 : d’un hall, un grand séjour ouvert sur une cuisine équipée. Au +2 : d’un hall de nuit, une toilette séparée, deux belles chambres à coucher. Au -1: une chambre à coucher, une pièce de rangement, un espace buanderie, un espace toilette. Au -2: 3 caves avec accès au jardin (25m²) TECHNIQUES : PEB : C, châssis double pvc, parcelle de 74 m², électricité conforme, gaz conforme, chaudière au gaz et radiateurs 2019, toiture rénovée et isolée 2019, RC 344€, raccordé aux égouts. Le bien est actuellement loué via la société LOGEO, le bien est loué à 549 euros/mois. ANNONCE NON CONTRACTUELLE - SOUS RESERVE D'ACCEPTATION DU PROPRIETAIRE. GSM: 0494 60 56 82 - E-MAIL : INFO@HOMES-IMMO.BE

Adresse

Avenue Eugène Müllendorff 83, 4800 Verviers, Belgique

Type de bien

Maison

État du bien

Bon état

Nombre d'étages

5

Orientation

nord-est

Conformité électrique

oui, conforme

Chauffage

chaudière

Prix

220 000 €

Disponibilité

en fonct. du locataire

Cadastre

344 €

Classe énergétique PEB

C

Code unique PEB

20230629022706

Valeur énergétique E-SPEC

233 kWh/m²/an

Valeur énergétique total E-Total

34957 Kwh/an

Type de chauffage

chaudière

Sup. totale

150 m²

Sup. du terrain

74 m²

Sup. du living

37 m²

Buanderie

10 m²

Chambre 1

13 m²

Chambre 2

12 m²

Chambre 3

12 m²

Jardin

25 m²

Nb de chambre(s)

4

Toilettes

3

Salles de bains

1

Cave

Oui

Jardin

Oui

Buanderie

Double Vitrage

Égouts

Electricité

Gaz

Accès à l'eau

array(133) { ["rank_math_internal_links_processed"]=> array(1) { [0]=> string(1) "1" } ["_thumbnail_id"]=> array(1) { [0]=> string(5) "26414" } ["wpis_locked"]=> array(1) { [0]=> string(1) "0" } ["wpis_id"]=> array(1) { [0]=> string(7) "7315568" } ["wpis_name"]=> array(1) { [0]=> string(21) "AVENUE MULLENDORFF 83" } ["wpis_reference"]=> array(1) { [0]=> string(7) "7288215" } ["wpis_category_label"]=> array(1) { [0]=> string(6) "Maison" } ["wpis_subcategory_label"]=> array(1) { [0]=> string(6) "Maison" } ["wpis_purpose_label"]=> array(1) { [0]=> string(9) "À vendre" } ["wpis_status_label"]=> array(1) { [0]=> string(6) "Option" } ["wpis_links_virtualVisit"]=> array(1) { [0]=> NULL } ["wpis_links_video"]=> array(1) { [0]=> NULL } ["wpis_links_model"]=> array(1) { [0]=> NULL } ["wpis_links_appointment"]=> array(1) { [0]=> NULL } ["wpis_links_custom"]=> array(1) { [0]=> NULL } ["wpis_properties_hasChildren"]=> array(1) { [0]=> string(0) "" } ["wpis_properties_hasParent"]=> array(1) { [0]=> string(0) "" } ["wpis_properties_parentId"]=> array(1) { [0]=> NULL } ["wpis_properties_isFavorite"]=> array(1) { [0]=> string(0) "" } ["wpis_properties_isFurnished"]=> array(1) { [0]=> string(0) "" } ["wpis_finance_price"]=> array(1) { [0]=> string(6) "220000" } ["wpis_finance_priceChangedAt"]=> array(1) { [0]=> string(27) "2025-11-28T09:28:22.770000Z" } ["wpis_finance_availableAt"]=> array(1) { [0]=> NULL } ["wpis_finance_availability"]=> array(1) { [0]=> string(23) "en fonct. du locataire" } ["wpis_finance_currency"]=> array(1) { [0]=> string(3) "€" } ["wpis_finance_annuityMonthly"]=> array(1) { [0]=> NULL } ["wpis_finance_cadastre"]=> array(1) { [0]=> string(3) "344" } ["wpis_finance_propertyTax"]=> array(1) { [0]=> NULL } ["wpis_finance_chargeOwner"]=> array(1) { [0]=> NULL } ["wpis_finance_chargeRenter"]=> array(1) { [0]=> NULL } ["wpis_finance_fieldValue"]=> array(1) { [0]=> NULL } ["wpis_finance_constructionValue"]=> array(1) { [0]=> NULL } ["wpis_finance_notarialDeedValue"]=> array(1) { [0]=> NULL } ["wpis_finance_garageUnitPrice"]=> array(1) { [0]=> NULL } ["wpis_finance_parkingUnitPrice"]=> array(1) { [0]=> NULL } ["wpis_finance_parkingInteriorUnitPrice"]=> array(1) { [0]=> NULL } ["wpis_finance_parkingExteriorUnitPrice"]=> array(1) { [0]=> NULL } ["wpis_finance_offer"]=> array(1) { [0]=> string(0) "" } ["wpis_finance_hidden"]=> array(1) { [0]=> string(0) "" } ["wpis_building_constructionYear"]=> array(1) { [0]=> NULL } ["wpis_building_renovationYear"]=> array(1) { [0]=> string(4) "2019" } ["wpis_building_orientation"]=> array(1) { [0]=> string(8) "nord-est" } ["wpis_building_gardenOrientation"]=> array(1) { [0]=> string(8) "nord est" } ["wpis_building_terraceOrientation"]=> array(1) { [0]=> NULL } ["wpis_building_state"]=> array(1) { [0]=> string(9) "Bon état" } ["wpis_areas_total"]=> array(1) { [0]=> string(3) "150" } ["wpis_areas_ground"]=> array(1) { [0]=> string(2) "74" } ["wpis_areas_garden"]=> array(1) { [0]=> string(2) "25" } ["wpis_areas_living"]=> array(1) { [0]=> string(2) "37" } ["wpis_areas_diningroom"]=> array(1) { [0]=> NULL } ["wpis_areas_kitchen"]=> array(1) { [0]=> NULL } ["wpis_areas_bathroom"]=> array(1) { [0]=> NULL } ["wpis_areas_cellar"]=> array(1) { [0]=> NULL } ["wpis_areas_washroom"]=> array(1) { [0]=> string(2) "10" } ["wpis_areas_dressing"]=> array(1) { [0]=> NULL } ["wpis_areas_office"]=> array(1) { [0]=> NULL } ["wpis_areas_bedroom1"]=> array(1) { [0]=> string(2) "13" } ["wpis_areas_bedroom2"]=> array(1) { [0]=> string(2) "12" } ["wpis_areas_bedroom3"]=> array(1) { [0]=> string(2) "12" } ["wpis_areas_bedroom4"]=> array(1) { [0]=> NULL } ["wpis_areas_bedroom5"]=> array(1) { [0]=> NULL } ["wpis_areas_showroom"]=> array(1) { [0]=> NULL } ["wpis_areas_storage"]=> array(1) { [0]=> NULL } ["wpis_areas_terrace"]=> array(1) { [0]=> NULL } ["wpis_areas_manufacturing"]=> array(1) { [0]=> NULL } ["wpis_areas_displayWindow"]=> array(1) { [0]=> NULL } ["wpis_energy_epcCode"]=> array(1) { [0]=> string(14) "20230629022706" } ["wpis_energy_epcLabel"]=> array(1) { [0]=> string(1) "C" } ["wpis_energy_epcValue"]=> array(1) { [0]=> string(3) "233" } ["wpis_energy_epcTotal"]=> array(1) { [0]=> string(5) "34957" } ["wpis_energy_gazEmit"]=> array(1) { [0]=> NULL } ["wpis_energy_heatingType"]=> array(1) { [0]=> string(10) "chaudière" } ["wpis_energy_solarElectricity"]=> array(1) { [0]=> NULL } ["wpis_energy_electricityConformity"]=> array(1) { [0]=> string(13) "oui, conforme" } ["wpis_address_street"]=> array(1) { [0]=> string(27) "Avenue Eugène Müllendorff" } ["wpis_address_number"]=> array(1) { [0]=> string(2) "83" } ["wpis_address_box"]=> array(1) { [0]=> NULL } ["wpis_address_zip"]=> array(1) { [0]=> string(4) "4800" } ["wpis_address_city"]=> array(1) { [0]=> string(8) "Verviers" } ["wpis_address_country"]=> array(1) { [0]=> string(8) "Belgique" } ["wpis_address_longitude"]=> array(1) { [0]=> string(15) "5.8702397346755" } ["wpis_address_latitude"]=> array(1) { [0]=> string(15) "50.588781537103" } ["wpis_proximity_highway"]=> array(1) { [0]=> string(1) "1" } ["wpis_proximity_transports"]=> array(1) { [0]=> string(1) "1" } ["wpis_proximity_station"]=> array(1) { [0]=> NULL } ["wpis_proximity_bus"]=> array(1) { [0]=> NULL } ["wpis_proximity_metro"]=> array(1) { [0]=> NULL } ["wpis_proximity_tram"]=> array(1) { [0]=> NULL } ["wpis_proximity_school"]=> array(1) { [0]=> string(1) "1" } ["wpis_proximity_stores"]=> array(1) { [0]=> string(1) "1" } ["wpis_proximity_sportCenter"]=> array(1) { [0]=> string(1) "1" } ["wpis_proximity_beach"]=> array(1) { [0]=> string(1) "1" } ["wpis_configuration_floorCurrent"]=> array(1) { [0]=> NULL } ["wpis_configuration_floorTotal"]=> array(1) { [0]=> string(1) "5" } ["wpis_configuration_bedrooms"]=> array(1) { [0]=> string(1) "4" } ["wpis_configuration_kitchens"]=> array(1) { [0]=> string(1) "1" } ["wpis_configuration_toilets"]=> array(1) { [0]=> string(1) "3" } ["wpis_configuration_bathrooms"]=> array(1) { [0]=> string(1) "1" } ["wpis_configuration_showerrooms"]=> array(1) { [0]=> string(1) "1" } ["wpis_configuration_garages"]=> array(1) { [0]=> string(1) "0" } ["wpis_configuration_terraces"]=> array(1) { [0]=> string(1) "0" } ["wpis_configuration_cave"]=> array(1) { [0]=> string(1) "1" } ["wpis_configuration_parking"]=> array(1) { [0]=> string(0) "" } ["wpis_configuration_garden"]=> array(1) { [0]=> string(1) "1" } ["wpis_files"]=> array(1) { [0]=> string(6) "a:0:{}" } ["wpis_createdAt"]=> array(1) { [0]=> string(27) "2025-12-18T11:31:30.457000Z" } ["wpis_updatedAt"]=> array(1) { [0]=> string(27) "2025-12-18T11:31:30.527000Z" } ["wpis_purpose_id"]=> array(1) { [0]=> string(1) "1" } ["wpis_status_id"]=> array(1) { [0]=> string(1) "5" } ["wpis_description_title"]=> array(1) { [0]=> string(61) "RENOVEE 2019 - CHASSIS DV PVC - 150M² -JARDIN - 4CH -ELEC OK" } ["wpis_description_base"]=> array(1) { [0]=> NULL } ["wpis_description_short"]=> array(1) { [0]=> string(1229) "!!! 3% DE FRAIS D'ACHAT !!! La société HOME'S IMMO a le plaisir de vous proposer à la vente cette grande maison 3 façades rénovée en 2017-2019, elle est idéalement située sur les hauteurs de Verviers à proximité de toutes les facilités ! (commerces, bus, etc…) Le bien est situé Avenue Eugène Mullendorfd 83 - 4800 VERVIERS. Le bien bénéficie de 150 m² selon PEB, Il est disposé comme suit : Au RDC : un hall d'entrée, une chambre à coucher, une salle de bains équipée. Au +1 : d’un hall, un grand séjour ouvert sur une cuisine équipée. Au +2 : d’un hall de nuit, une toilette séparée, deux belles chambres à coucher. Au -1: une chambre à coucher, une pièce de rangement, un espace buanderie, un espace toilette. Au -2: 3 caves avec accès au jardin (25m²) TECHNIQUES : PEB : C, châssis double pvc, parcelle de 74 m², électricité conforme, gaz conforme, chaudière au gaz et radiateurs 2019, toiture rénovée et isolée 2019, RC 344€, raccordé aux égouts. Le bien est actuellement loué via la société LOGEO, le bien est loué à 549 euros/mois. ANNONCE NON CONTRACTUELLE - SOUS RESERVE D'ACCEPTATION DU PROPRIETAIRE. GSM: 0494 60 56 82 - E-MAIL : INFO@HOMES-IMMO.BE " } ["wpis_description_long"]=> array(1) { [0]=> NULL } ["wpis_amenities_generic"]=> array(1) { [0]=> string(135) "a:6:{i:0;s:9:"Buanderie";i:1;s:14:"Double Vitrage";i:2;s:7:"Égouts";i:3;s:12:"Electricité";i:4;s:3:"Gaz";i:5;s:15:"Accès à l'eau";}" } ["wpis_amenities_custom"]=> array(1) { [0]=> string(6) "a:0:{}" } ["wpis_agency_id"]=> array(1) { [0]=> string(4) "9721" } ["wpis_agency_name"]=> array(1) { [0]=> string(11) "HOME'S IMMO" } ["wpis_agency_phone"]=> array(1) { [0]=> NULL } ["wpis_agency_email"]=> array(1) { [0]=> NULL } ["wpis_agency_addressFormatted"]=> array(1) { [0]=> NULL } ["wpis_agent_firstname"]=> array(1) { [0]=> string(3) "SRL" } ["wpis_agent_lastname"]=> array(1) { [0]=> string(11) "HOME'S IMMO" } ["wpis_agent_email"]=> array(1) { [0]=> string(18) "info@homes-immo.be" } ["wpis_agent_phone"]=> array(1) { [0]=> string(13) "0494 60 56 82" } ["wpis_agent_role"]=> array(1) { [0]=> string(13) "0494 60 56 82" } ["wpis_agent_picture"]=> array(1) { [0]=> string(62) "https://r2.storagewhise.eu/storage7345/Images/Agents/33483.jpg" } ["wpis_dataHash"]=> array(1) { [0]=> string(32) "8896c1e0ed48eb540e047608e1de4fc3" } ["wpis_picturesTemp"]=> array(1) { [0]=> string(5971) "[{"id":"74544717","title":null,"description":null,"order":"0","filename":"3a575a2be4af474aa393d5ed3bf53ed5","format":"jpg","url":"https://r2.storagewhise.eu/storage7345/Pictures/7315568/1600/3a575a2be4af474aa393d5ed3bf53ed5.jpg"},{"id":"74544727","title":null,"description":null,"order":"1","filename":"dccad2a27cff4215b6679d501f8a6b7f","format":"jpg","url":"https://r2.storagewhise.eu/storage7345/Pictures/7315568/1600/dccad2a27cff4215b6679d501f8a6b7f.jpg"},{"id":"74544729","title":null,"description":null,"order":"2","filename":"306c32f027c3429abbf8786deddef6d4","format":"jpg","url":"https://r2.storagewhise.eu/storage7345/Pictures/7315568/1600/306c32f027c3429abbf8786deddef6d4.jpg"},{"id":"74544730","title":null,"description":null,"order":"3","filename":"6bd8f8d20d6241c7adc6d4b0f5029903","format":"jpg","url":"https://r2.storagewhise.eu/storage7345/Pictures/7315568/1600/6bd8f8d20d6241c7adc6d4b0f5029903.jpg"},{"id":"74544731","title":null,"description":null,"order":"4","filename":"09b43d165d4345eaab2355df2012ec8c","format":"jpg","url":"https://r2.storagewhise.eu/storage7345/Pictures/7315568/1600/09b43d165d4345eaab2355df2012ec8c.jpg"},{"id":"74544726","title":null,"description":null,"order":"5","filename":"ce3f0928116f49989349730227d43fc5","format":"jpg","url":"https://r2.storagewhise.eu/storage7345/Pictures/7315568/1600/ce3f0928116f49989349730227d43fc5.jpg"},{"id":"74544725","title":null,"description":null,"order":"6","filename":"8bd65a25515a4660a92d0ae04f9fb185","format":"jpg","url":"https://r2.storagewhise.eu/storage7345/Pictures/7315568/1600/8bd65a25515a4660a92d0ae04f9fb185.jpg"},{"id":"74544733","title":null,"description":null,"order":"7","filename":"c2638dfe07a74258af82ffbb49ae6ea6","format":"jpg","url":"https://r2.storagewhise.eu/storage7345/Pictures/7315568/1600/c2638dfe07a74258af82ffbb49ae6ea6.jpg"},{"id":"74544734","title":null,"description":null,"order":"8","filename":"748fa2c6cad1424588afb564e58e1959","format":"jpg","url":"https://r2.storagewhise.eu/storage7345/Pictures/7315568/1600/748fa2c6cad1424588afb564e58e1959.jpg"},{"id":"74544735","title":null,"description":null,"order":"9","filename":"19ea68d9a72e4a45a181f876b252d687","format":"jpg","url":"https://r2.storagewhise.eu/storage7345/Pictures/7315568/1600/19ea68d9a72e4a45a181f876b252d687.jpg"},{"id":"74544736","title":null,"description":null,"order":"10","filename":"52465a9848e84432aec2cabda849134e","format":"jpg","url":"https://r2.storagewhise.eu/storage7345/Pictures/7315568/1600/52465a9848e84432aec2cabda849134e.jpg"},{"id":"74544728","title":null,"description":null,"order":"11","filename":"7eb4e1041fea41caaf4a094032b05140","format":"jpg","url":"https://r2.storagewhise.eu/storage7345/Pictures/7315568/1600/7eb4e1041fea41caaf4a094032b05140.jpg"},{"id":"74544732","title":null,"description":null,"order":"12","filename":"0e0a234669344e2eb9e6252281864426","format":"jpg","url":"https://r2.storagewhise.eu/storage7345/Pictures/7315568/1600/0e0a234669344e2eb9e6252281864426.jpg"},{"id":"74544724","title":null,"description":null,"order":"13","filename":"a4d05885c4514751bada69ca9ab0ce30","format":"jpg","url":"https://r2.storagewhise.eu/storage7345/Pictures/7315568/1600/a4d05885c4514751bada69ca9ab0ce30.jpg"},{"id":"74544722","title":null,"description":null,"order":"14","filename":"9cd30c4f7664404db2a84531eb62e453","format":"jpg","url":"https://r2.storagewhise.eu/storage7345/Pictures/7315568/1600/9cd30c4f7664404db2a84531eb62e453.jpg"},{"id":"74544718","title":null,"description":null,"order":"15","filename":"9baed7bf93444dea9fa52239fe28d888","format":"jpg","url":"https://r2.storagewhise.eu/storage7345/Pictures/7315568/1600/9baed7bf93444dea9fa52239fe28d888.jpg"},{"id":"74544723","title":null,"description":null,"order":"16","filename":"ae794720bccf4f0da067237d49faa21f","format":"jpg","url":"https://r2.storagewhise.eu/storage7345/Pictures/7315568/1600/ae794720bccf4f0da067237d49faa21f.jpg"},{"id":"74544720","title":null,"description":null,"order":"17","filename":"73c72ec8f65249cda50181b013c0fa5a","format":"jpg","url":"https://r2.storagewhise.eu/storage7345/Pictures/7315568/1600/73c72ec8f65249cda50181b013c0fa5a.jpg"},{"id":"74544719","title":null,"description":null,"order":"18","filename":"60a3a7632b1e4b93ad3d72826f5eb77b","format":"jpg","url":"https://r2.storagewhise.eu/storage7345/Pictures/7315568/1600/60a3a7632b1e4b93ad3d72826f5eb77b.jpg"},{"id":"74544721","title":null,"description":null,"order":"19","filename":"a95486755f3b4881b702b590c6be40d9","format":"jpg","url":"https://r2.storagewhise.eu/storage7345/Pictures/7315568/1600/a95486755f3b4881b702b590c6be40d9.jpg"},{"id":"74544737","title":null,"description":null,"order":"20","filename":"615ef9b44c3f45519a6606aa42a36292","format":"jpg","url":"https://r2.storagewhise.eu/storage7345/Pictures/7315568/1600/615ef9b44c3f45519a6606aa42a36292.jpg"},{"id":"74544738","title":null,"description":null,"order":"21","filename":"c89497daebbf4e64964a8b5abb47cd0b","format":"jpg","url":"https://r2.storagewhise.eu/storage7345/Pictures/7315568/1600/c89497daebbf4e64964a8b5abb47cd0b.jpg"},{"id":"74544739","title":null,"description":null,"order":"22","filename":"c5ab621c63f7449aab483e3669b6207c","format":"jpg","url":"https://r2.storagewhise.eu/storage7345/Pictures/7315568/1600/c5ab621c63f7449aab483e3669b6207c.jpg"},{"id":"74544740","title":null,"description":null,"order":"23","filename":"471841f6ae4d4b5598b6f7ed278c4e6f","format":"jpg","url":"https://r2.storagewhise.eu/storage7345/Pictures/7315568/1600/471841f6ae4d4b5598b6f7ed278c4e6f.jpg"},{"id":"74544741","title":null,"description":null,"order":"24","filename":"faed4befe4cb495f86d08d8509f222c9","format":"jpg","url":"https://r2.storagewhise.eu/storage7345/Pictures/7315568/1600/faed4befe4cb495f86d08d8509f222c9.jpg"},{"id":"74544742","title":null,"description":null,"order":"25","filename":"775eb66d294d48099361af799c710b2a","format":"jpg","url":"https://r2.storagewhise.eu/storage7345/Pictures/7315568/1600/775eb66d294d48099361af799c710b2a.jpg"}]" } ["wpis_picturesHashChanged"]=> array(1) { [0]=> string(0) "" } ["wpis_picturesHash"]=> array(1) { [0]=> string(32) "af6bfbfaed2b4debcf313433e9726db2" } ["wpis_completed"]=> array(1) { [0]=> string(1) "1" } ["_wp_old_slug"]=> array(1) { [0]=> string(29) "7315568-avenue-mullendorff-83" } ["wpis_unmapped"]=> array(1) { [0]=> string(6) "a:0:{}" } }
Estimation gratuite