Menu

Maison

4821 Dison Andrimont

138 m²
3
1

HOME'S IMMO

Contacter HOME'S IMMO

info@homes-immo.be

Appeler HOME'S IMMO

0494 60 56 82
Description
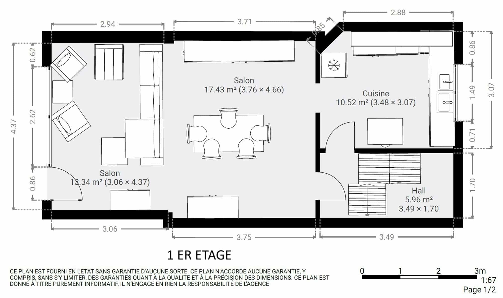
!!! 3% DE FRAIS D'ACHAT !!! La société HOME'S IMMO a le plaisir de vous proposer à la vente cette grande maison 2 façades, elle est idéalement située sur les hauteurs d’Andrimont à proximité de toutes les facilités (commerces, bus, etc…), endroit très calme et recherché ! Le bien est situé rue Albert de T’Serclaes 82 - 4821 Andrimont. Le bien bénéficie de 138 m² selon PEB, Il est disposé comme suit : Au RDC : un hall d'entrée, une toilette indépendante, une pièce rangement, un espace buanderie. Au +1 : d’un hall, un grand salon ouvert avec accès direct à la terrasse et au jardin, une salle à manger, une cuisine équipée. Au +2 : d’un hall de nuit, une salle de bains, deux belles chambres à coucher + une troisième chambre au niveau du grenier (mansardé). TECHNIQUES : PEB : D, châssis double pvc/bois, abri de jardin, parcelle de 175 m², électricité non-conforme, isolation toiture, chaudière au gaz, RC 727€, raccordé aux égouts. LIBRE A L'ACTE AUTHENTIQUE. ANNONCE NON CONTRACTUELLE - SOUS RESERVE D'ACCEPTATION DU PROPRIETAIRE. GSM: 0494 60 56 82 - E-MAIL : INFO@HOMES-IMMO.BE

Adresse

rue albert de t 82, 4821 Dison Andrimont, Belgique

Type de bien

Maison

État du bien

À rénover

Nombre d'étages

3

Orientation

est

Conformité électrique

oui, non conforme

Chauffage

gaz

Prix

249 000 €

Disponibilité

à l'acte

Classe énergétique PEB

D

Code unique PEB

20251104019536

Valeur énergétique E-SPEC

278 kWh/m²/an

Valeur énergétique total E-Total

38276 Kwh/an

Émission de CO2

6972 Kg CO2/an

Type de chauffage

gaz

Sup. totale

138 m²

Sup. du terrain

175 m²

Sup. du living

18 m²

Cuisine

11 m²

Salle de bain

5 m²

Buanderie

8 m²

Chambre 1

11 m²

Chambre 2

11 m²

Chambre 3

15 m²

Jardin

100 m²

Nb de chambre(s)

3

Toilettes

2

Salles de bains

1

Terrasse

Oui

Jardin

Oui

Bureau

Double Vitrage

Égouts

Electricité

Gaz

Accès à l'eau

array(133) { ["rank_math_internal_links_processed"]=> array(1) { [0]=> string(1) "1" } ["_thumbnail_id"]=> array(1) { [0]=> string(5) "28029" } ["wpis_locked"]=> array(1) { [0]=> string(1) "0" } ["wpis_id"]=> array(1) { [0]=> string(7) "7594506" } ["wpis_name"]=> array(1) { [0]=> string(27) "rue Albert de T'serclaes 82" } ["wpis_reference"]=> array(1) { [0]=> string(7) "7548922" } ["wpis_category_label"]=> array(1) { [0]=> string(6) "Maison" } ["wpis_subcategory_label"]=> array(1) { [0]=> string(6) "Maison" } ["wpis_purpose_label"]=> array(1) { [0]=> string(9) "À vendre" } ["wpis_status_label"]=> array(1) { [0]=> string(9) "À vendre" } ["wpis_links_virtualVisit"]=> array(1) { [0]=> NULL } ["wpis_links_video"]=> array(1) { [0]=> NULL } ["wpis_links_model"]=> array(1) { [0]=> NULL } ["wpis_links_appointment"]=> array(1) { [0]=> NULL } ["wpis_links_custom"]=> array(1) { [0]=> NULL } ["wpis_properties_hasChildren"]=> array(1) { [0]=> string(0) "" } ["wpis_properties_hasParent"]=> array(1) { [0]=> string(0) "" } ["wpis_properties_parentId"]=> array(1) { [0]=> NULL } ["wpis_properties_isFavorite"]=> array(1) { [0]=> string(0) "" } ["wpis_properties_isFurnished"]=> array(1) { [0]=> string(0) "" } ["wpis_finance_price"]=> array(1) { [0]=> string(6) "249000" } ["wpis_finance_priceChangedAt"]=> array(1) { [0]=> string(27) "2025-11-06T12:23:10.827000Z" } ["wpis_finance_availableAt"]=> array(1) { [0]=> NULL } ["wpis_finance_availability"]=> array(1) { [0]=> string(9) "à l'acte" } ["wpis_finance_currency"]=> array(1) { [0]=> string(3) "€" } ["wpis_finance_annuityMonthly"]=> array(1) { [0]=> NULL } ["wpis_finance_cadastre"]=> array(1) { [0]=> NULL } ["wpis_finance_propertyTax"]=> array(1) { [0]=> NULL } ["wpis_finance_chargeOwner"]=> array(1) { [0]=> NULL } ["wpis_finance_chargeRenter"]=> array(1) { [0]=> NULL } ["wpis_finance_fieldValue"]=> array(1) { [0]=> NULL } ["wpis_finance_constructionValue"]=> array(1) { [0]=> NULL } ["wpis_finance_notarialDeedValue"]=> array(1) { [0]=> NULL } ["wpis_finance_garageUnitPrice"]=> array(1) { [0]=> NULL } ["wpis_finance_parkingUnitPrice"]=> array(1) { [0]=> NULL } ["wpis_finance_parkingInteriorUnitPrice"]=> array(1) { [0]=> NULL } ["wpis_finance_parkingExteriorUnitPrice"]=> array(1) { [0]=> NULL } ["wpis_finance_offer"]=> array(1) { [0]=> string(0) "" } ["wpis_finance_hidden"]=> array(1) { [0]=> string(0) "" } ["wpis_building_constructionYear"]=> array(1) { [0]=> NULL } ["wpis_building_renovationYear"]=> array(1) { [0]=> NULL } ["wpis_building_orientation"]=> array(1) { [0]=> string(3) "est" } ["wpis_building_gardenOrientation"]=> array(1) { [0]=> string(3) "est" } ["wpis_building_terraceOrientation"]=> array(1) { [0]=> NULL } ["wpis_building_state"]=> array(1) { [0]=> string(11) "À rénover" } ["wpis_areas_total"]=> array(1) { [0]=> string(3) "138" } ["wpis_areas_ground"]=> array(1) { [0]=> string(3) "175" } ["wpis_areas_garden"]=> array(1) { [0]=> string(3) "100" } ["wpis_areas_living"]=> array(1) { [0]=> string(2) "18" } ["wpis_areas_diningroom"]=> array(1) { [0]=> NULL } ["wpis_areas_kitchen"]=> array(1) { [0]=> string(2) "11" } ["wpis_areas_bathroom"]=> array(1) { [0]=> string(1) "5" } ["wpis_areas_cellar"]=> array(1) { [0]=> NULL } ["wpis_areas_washroom"]=> array(1) { [0]=> string(1) "8" } ["wpis_areas_dressing"]=> array(1) { [0]=> NULL } ["wpis_areas_office"]=> array(1) { [0]=> NULL } ["wpis_areas_bedroom1"]=> array(1) { [0]=> string(2) "11" } ["wpis_areas_bedroom2"]=> array(1) { [0]=> string(2) "11" } ["wpis_areas_bedroom3"]=> array(1) { [0]=> string(2) "15" } ["wpis_areas_bedroom4"]=> array(1) { [0]=> NULL } ["wpis_areas_bedroom5"]=> array(1) { [0]=> NULL } ["wpis_areas_showroom"]=> array(1) { [0]=> NULL } ["wpis_areas_storage"]=> array(1) { [0]=> NULL } ["wpis_areas_terrace"]=> array(1) { [0]=> NULL } ["wpis_areas_manufacturing"]=> array(1) { [0]=> NULL } ["wpis_areas_displayWindow"]=> array(1) { [0]=> NULL } ["wpis_energy_epcCode"]=> array(1) { [0]=> string(14) "20251104019536" } ["wpis_energy_epcLabel"]=> array(1) { [0]=> string(1) "D" } ["wpis_energy_epcValue"]=> array(1) { [0]=> string(3) "278" } ["wpis_energy_epcTotal"]=> array(1) { [0]=> string(5) "38276" } ["wpis_energy_gazEmit"]=> array(1) { [0]=> string(4) "6972" } ["wpis_energy_heatingType"]=> array(1) { [0]=> string(3) "gaz" } ["wpis_energy_solarElectricity"]=> array(1) { [0]=> NULL } ["wpis_energy_electricityConformity"]=> array(1) { [0]=> string(17) "oui, non conforme" } ["wpis_address_street"]=> array(1) { [0]=> string(15) "rue albert de t" } ["wpis_address_number"]=> array(1) { [0]=> string(2) "82" } ["wpis_address_box"]=> array(1) { [0]=> NULL } ["wpis_address_zip"]=> array(1) { [0]=> string(4) "4821" } ["wpis_address_city"]=> array(1) { [0]=> string(15) "Dison Andrimont" } ["wpis_address_country"]=> array(1) { [0]=> string(8) "Belgique" } ["wpis_address_longitude"]=> array(1) { [0]=> string(9) "5.8650355" } ["wpis_address_latitude"]=> array(1) { [0]=> string(9) "50.601524" } ["wpis_proximity_highway"]=> array(1) { [0]=> string(1) "1" } ["wpis_proximity_transports"]=> array(1) { [0]=> string(1) "1" } ["wpis_proximity_station"]=> array(1) { [0]=> NULL } ["wpis_proximity_bus"]=> array(1) { [0]=> NULL } ["wpis_proximity_metro"]=> array(1) { [0]=> NULL } ["wpis_proximity_tram"]=> array(1) { [0]=> NULL } ["wpis_proximity_school"]=> array(1) { [0]=> string(1) "1" } ["wpis_proximity_stores"]=> array(1) { [0]=> string(1) "1" } ["wpis_proximity_sportCenter"]=> array(1) { [0]=> string(1) "1" } ["wpis_proximity_beach"]=> array(1) { [0]=> string(1) "1" } ["wpis_configuration_floorCurrent"]=> array(1) { [0]=> NULL } ["wpis_configuration_floorTotal"]=> array(1) { [0]=> string(1) "3" } ["wpis_configuration_bedrooms"]=> array(1) { [0]=> string(1) "3" } ["wpis_configuration_kitchens"]=> array(1) { [0]=> string(1) "1" } ["wpis_configuration_toilets"]=> array(1) { [0]=> string(1) "2" } ["wpis_configuration_bathrooms"]=> array(1) { [0]=> string(1) "1" } ["wpis_configuration_showerrooms"]=> array(1) { [0]=> NULL } ["wpis_configuration_garages"]=> array(1) { [0]=> string(1) "0" } ["wpis_configuration_terraces"]=> array(1) { [0]=> string(1) "1" } ["wpis_configuration_cave"]=> array(1) { [0]=> NULL } ["wpis_configuration_parking"]=> array(1) { [0]=> NULL } ["wpis_configuration_garden"]=> array(1) { [0]=> string(1) "1" } ["wpis_files"]=> array(1) { [0]=> string(6) "a:0:{}" } ["wpis_createdAt"]=> array(1) { [0]=> string(27) "2026-03-04T09:12:44.453000Z" } ["wpis_updatedAt"]=> array(1) { [0]=> string(27) "2026-03-05T08:24:14.503000Z" } ["wpis_purpose_id"]=> array(1) { [0]=> string(1) "1" } ["wpis_status_id"]=> array(1) { [0]=> string(1) "1" } ["wpis_description_title"]=> array(1) { [0]=> string(61) "2 FACADES - CHASSIS DV - 138M² - JARDIN - 3CH -ENDROIT CALME" } ["wpis_description_base"]=> array(1) { [0]=> NULL } ["wpis_description_short"]=> array(1) { [0]=> string(1145) "!!! 3% DE FRAIS D'ACHAT !!! La société HOME'S IMMO a le plaisir de vous proposer à la vente cette grande maison 2 façades, elle est idéalement située sur les hauteurs d’Andrimont à proximité de toutes les facilités (commerces, bus, etc…), endroit très calme et recherché ! Le bien est situé rue Albert de T’Serclaes 82 - 4821 Andrimont. Le bien bénéficie de 138 m² selon PEB, Il est disposé comme suit : Au RDC : un hall d'entrée, une toilette indépendante, une pièce rangement, un espace buanderie. Au +1 : d’un hall, un grand salon ouvert avec accès direct à la terrasse et au jardin, une salle à manger, une cuisine équipée. Au +2 : d’un hall de nuit, une salle de bains, deux belles chambres à coucher + une troisième chambre au niveau du grenier (mansardé). TECHNIQUES : PEB : D, châssis double pvc/bois, abri de jardin, parcelle de 175 m², électricité non-conforme, isolation toiture, chaudière au gaz, RC 727€, raccordé aux égouts. LIBRE A L'ACTE AUTHENTIQUE. ANNONCE NON CONTRACTUELLE - SOUS RESERVE D'ACCEPTATION DU PROPRIETAIRE. GSM: 0494 60 56 82 - E-MAIL : INFO@HOMES-IMMO.BE " } ["wpis_description_long"]=> array(1) { [0]=> NULL } ["wpis_amenities_generic"]=> array(1) { [0]=> string(132) "a:6:{i:0;s:6:"Bureau";i:1;s:14:"Double Vitrage";i:2;s:7:"Égouts";i:3;s:12:"Electricité";i:4;s:3:"Gaz";i:5;s:15:"Accès à l'eau";}" } ["wpis_amenities_custom"]=> array(1) { [0]=> string(6) "a:0:{}" } ["wpis_agency_id"]=> array(1) { [0]=> string(4) "9721" } ["wpis_agency_name"]=> array(1) { [0]=> string(11) "HOME'S IMMO" } ["wpis_agency_phone"]=> array(1) { [0]=> NULL } ["wpis_agency_email"]=> array(1) { [0]=> NULL } ["wpis_agency_addressFormatted"]=> array(1) { [0]=> NULL } ["wpis_agent_firstname"]=> array(1) { [0]=> string(3) "SRL" } ["wpis_agent_lastname"]=> array(1) { [0]=> string(11) "HOME'S IMMO" } ["wpis_agent_email"]=> array(1) { [0]=> string(18) "info@homes-immo.be" } ["wpis_agent_phone"]=> array(1) { [0]=> string(13) "0494 60 56 82" } ["wpis_agent_role"]=> array(1) { [0]=> string(13) "0494 60 56 82" } ["wpis_agent_picture"]=> array(1) { [0]=> string(62) "https://r2.storagewhise.eu/storage7345/Images/Agents/33483.jpg" } ["wpis_unmapped"]=> array(1) { [0]=> string(6) "a:0:{}" } ["wpis_dataHash"]=> array(1) { [0]=> string(32) "5a44d5d9055d34960a0c7bdb09d0a996" } ["wpis_picturesTemp"]=> array(1) { [0]=> string(5741) "[{"id":"76104428","title":null,"description":null,"order":"0","filename":"a8f4f45d6c11454a87e74415900b7404","format":"jpg","url":"https://r2.storagewhise.eu/storage7345/Pictures/7594506/1600/a8f4f45d6c11454a87e74415900b7404.jpg"},{"id":"76104427","title":null,"description":null,"order":"1","filename":"1988bdb89e5247aca9f5c6aa0eef4294","format":"jpg","url":"https://r2.storagewhise.eu/storage7345/Pictures/7594506/1600/1988bdb89e5247aca9f5c6aa0eef4294.jpg"},{"id":"76104409","title":null,"description":null,"order":"2","filename":"f78d055823d542458040f457d3c4f954","format":"jpg","url":"https://r2.storagewhise.eu/storage7345/Pictures/7594506/1600/f78d055823d542458040f457d3c4f954.jpg"},{"id":"76104410","title":null,"description":null,"order":"3","filename":"674f3d3de50a4cf999aa3c3e7e4df6dd","format":"jpg","url":"https://r2.storagewhise.eu/storage7345/Pictures/7594506/1600/674f3d3de50a4cf999aa3c3e7e4df6dd.jpg"},{"id":"76104418","title":null,"description":null,"order":"4","filename":"1fb51ef056784644a8e2cb64e3ebed4a","format":"jpg","url":"https://r2.storagewhise.eu/storage7345/Pictures/7594506/1600/1fb51ef056784644a8e2cb64e3ebed4a.jpg"},{"id":"76104411","title":null,"description":null,"order":"5","filename":"fef8c0cf554545beaee24567de4362bb","format":"jpg","url":"https://r2.storagewhise.eu/storage7345/Pictures/7594506/1600/fef8c0cf554545beaee24567de4362bb.jpg"},{"id":"76104413","title":null,"description":null,"order":"6","filename":"820e0a6dcf604b0a91a55ef1f11c9c6c","format":"jpg","url":"https://r2.storagewhise.eu/storage7345/Pictures/7594506/1600/820e0a6dcf604b0a91a55ef1f11c9c6c.jpg"},{"id":"76104412","title":null,"description":null,"order":"7","filename":"c1192e6189794683915594ad2971aa9d","format":"jpg","url":"https://r2.storagewhise.eu/storage7345/Pictures/7594506/1600/c1192e6189794683915594ad2971aa9d.jpg"},{"id":"76104414","title":null,"description":null,"order":"8","filename":"7b2b482f63aa45f584184f627752fdcb","format":"jpg","url":"https://r2.storagewhise.eu/storage7345/Pictures/7594506/1600/7b2b482f63aa45f584184f627752fdcb.jpg"},{"id":"76104415","title":null,"description":null,"order":"9","filename":"071810d12b074e48b0387701537b5cb1","format":"jpg","url":"https://r2.storagewhise.eu/storage7345/Pictures/7594506/1600/071810d12b074e48b0387701537b5cb1.jpg"},{"id":"76104416","title":null,"description":null,"order":"10","filename":"f82257f34c814c7abd0318f027cfe998","format":"jpg","url":"https://r2.storagewhise.eu/storage7345/Pictures/7594506/1600/f82257f34c814c7abd0318f027cfe998.jpg"},{"id":"76104417","title":null,"description":null,"order":"11","filename":"bcf2411c4fbf4476af9eb65584d1a99b","format":"jpg","url":"https://r2.storagewhise.eu/storage7345/Pictures/7594506/1600/bcf2411c4fbf4476af9eb65584d1a99b.jpg"},{"id":"76104419","title":null,"description":null,"order":"12","filename":"40e8839620204a51930be841edddcf61","format":"jpg","url":"https://r2.storagewhise.eu/storage7345/Pictures/7594506/1600/40e8839620204a51930be841edddcf61.jpg"},{"id":"76104420","title":null,"description":null,"order":"13","filename":"69820feb87b642bba32b6c8aab5b2807","format":"jpg","url":"https://r2.storagewhise.eu/storage7345/Pictures/7594506/1600/69820feb87b642bba32b6c8aab5b2807.jpg"},{"id":"76104421","title":null,"description":null,"order":"14","filename":"23fd1fc48157478dac78d6f292872153","format":"jpg","url":"https://r2.storagewhise.eu/storage7345/Pictures/7594506/1600/23fd1fc48157478dac78d6f292872153.jpg"},{"id":"76104422","title":null,"description":null,"order":"15","filename":"cf94517b80b14b0cb09a43075a0bc095","format":"jpg","url":"https://r2.storagewhise.eu/storage7345/Pictures/7594506/1600/cf94517b80b14b0cb09a43075a0bc095.jpg"},{"id":"76104423","title":null,"description":null,"order":"16","filename":"0a7d0d016ade4594b64f5ca4c68d9862","format":"jpg","url":"https://r2.storagewhise.eu/storage7345/Pictures/7594506/1600/0a7d0d016ade4594b64f5ca4c68d9862.jpg"},{"id":"76104424","title":null,"description":null,"order":"17","filename":"3b4704b3bbc0490ab3e45e82bf329e73","format":"jpg","url":"https://r2.storagewhise.eu/storage7345/Pictures/7594506/1600/3b4704b3bbc0490ab3e45e82bf329e73.jpg"},{"id":"76104425","title":null,"description":null,"order":"18","filename":"c5bf8d75be3548b895c4fe069c598618","format":"jpg","url":"https://r2.storagewhise.eu/storage7345/Pictures/7594506/1600/c5bf8d75be3548b895c4fe069c598618.jpg"},{"id":"76104426","title":null,"description":null,"order":"19","filename":"ecb5f25bff384761a4d7041be369c771","format":"jpg","url":"https://r2.storagewhise.eu/storage7345/Pictures/7594506/1600/ecb5f25bff384761a4d7041be369c771.jpg"},{"id":"76104430","title":null,"description":null,"order":"20","filename":"035b0d962b1d43e0a6e498d33579f52a","format":"jpg","url":"https://r2.storagewhise.eu/storage7345/Pictures/7594506/1600/035b0d962b1d43e0a6e498d33579f52a.jpg"},{"id":"76104433","title":null,"description":null,"order":"21","filename":"d7665c11e02e4381b0438988d7c7b5da","format":"jpg","url":"https://r2.storagewhise.eu/storage7345/Pictures/7594506/1600/d7665c11e02e4381b0438988d7c7b5da.jpg"},{"id":"76104432","title":null,"description":null,"order":"22","filename":"08d308fb1251478b991f50c277d39132","format":"jpg","url":"https://r2.storagewhise.eu/storage7345/Pictures/7594506/1600/08d308fb1251478b991f50c277d39132.jpg"},{"id":"76104431","title":null,"description":null,"order":"23","filename":"bdb76816de2b419d9943fbb19ba3381b","format":"jpg","url":"https://r2.storagewhise.eu/storage7345/Pictures/7594506/1600/bdb76816de2b419d9943fbb19ba3381b.jpg"},{"id":"76104429","title":null,"description":null,"order":"24","filename":"a32de81e484b482087035f03caabf7e3","format":"jpg","url":"https://r2.storagewhise.eu/storage7345/Pictures/7594506/1600/a32de81e484b482087035f03caabf7e3.jpg"}]" } ["wpis_picturesHashChanged"]=> array(1) { [0]=> string(0) "" } ["wpis_picturesHash"]=> array(1) { [0]=> string(32) "6baeb31cd34fed393e85b2bfc7e1defd" } ["wpis_completed"]=> array(1) { [0]=> string(1) "1" } ["_wp_old_slug"]=> array(1) { [0]=> string(34) "7594506-rue-albert-de-tserclaes-82" } }
Estimation gratuite