Menu

Maison

4800 Verviers

99 m²
2
1

HOME'S IMMO

Contacter HOME'S IMMO

info@homes-immo.be

Appeler HOME'S IMMO

0494 60 56 82
Description
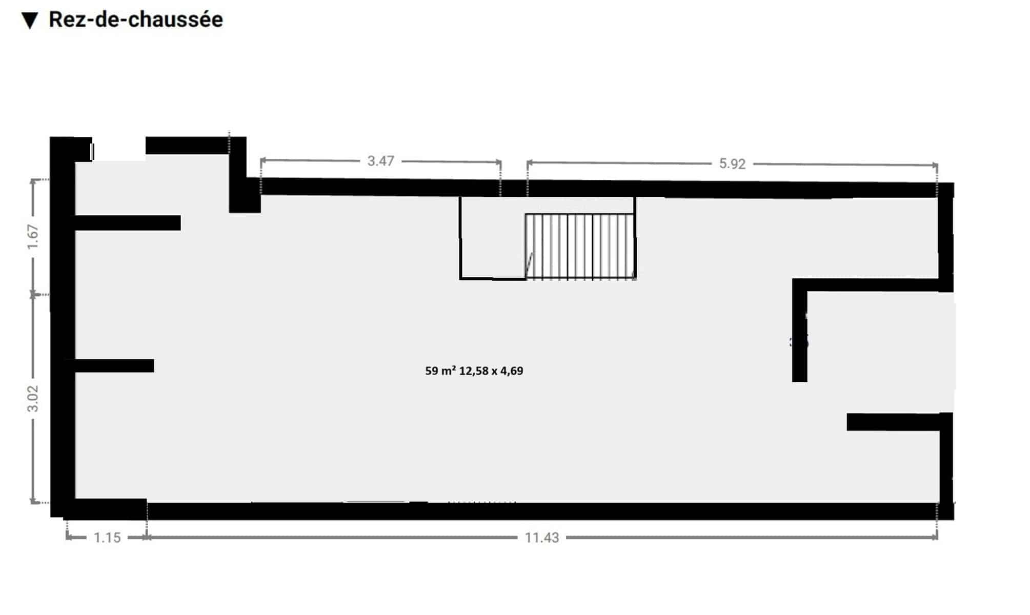
La société HOME'S IMMO a le plaisir de vous proposer à la vente une maison de commerce idéalement située en centre-ville, offrant un fort potentiel de rénovation et de réaménagement. Le bien bénéficie d’une très belle vitrine ainsi que d’un accès par l’arrière du bâtiment. Le bien se compose d’un vaste rez-de-chaussée commercial d’environ 62 m², idéal pour le développement d’une activité commerciale, complété par trois niveaux de 45 m² chacun, dont un logement de 99 m² (selon PEB). Au premier étage : un grand séjour et une cuisine. Au deuxième étage : une chambre à coucher, une toilette, une deuxième chambre à coucher ainsi qu’une salle de bains. Au troisième étage : un grenier aménageable. Au sous-sol : vous bénéficierez également de caves, offrant un espace de stockage supplémentaire. Ce bien représente une opportunité idéale pour investisseurs ou commerçants souhaitant développer un projet sur mesure en centre-ville. Caractéristiques techniques Simple vitrage Raccordement à l’égout Électricité à rénover Compteurs individuels eau, électricité et gaz RC: 1730 EUROS Chauffage central au gaz Le bien sera disponible à l’acte authentique. Servitudes existantes. Annonce non contractuelle – sous réserve d’acceptation du propriétaire. Ne tardez pas à planifier votre visite au 0494 60 56 82 ou par email à info@homes-immo.be .

Adresse

Crapaurue 97, 4800 Verviers, Belgique

Type de bien

Maison

État du bien

À rénover

Conformité électrique

non

Prix

119 000 €

Disponibilité

à l'acte

Cadastre

1 730 €

Classe énergétique PEB

E

Code unique PEB

20240408027452

Valeur énergétique E-SPEC

415 kWh/m²/an

Valeur énergétique total E-Total

41190 Kwh/an

Sup. totale

99 m²

Sup. du terrain

62 m²

Sup. du living

18 m²

Cuisine

15 m²

Chambre 1

15 m²

Chambre 2

10 m²

Nb de chambre(s)

2

Toilettes

1

Salles de bains

1

Égouts

Electricité

Gaz

Accès à l'eau

array(133) { ["rank_math_internal_links_processed"]=> array(1) { [0]=> string(1) "1" } ["_thumbnail_id"]=> array(1) { [0]=> string(5) "28167" } ["wpis_locked"]=> array(1) { [0]=> string(1) "0" } ["wpis_id"]=> array(1) { [0]=> string(7) "7600570" } ["wpis_name"]=> array(1) { [0]=> string(26) "RUE CRAPAURUE 99 VERVIERS" } ["wpis_reference"]=> array(1) { [0]=> NULL } ["wpis_category_label"]=> array(1) { [0]=> string(6) "Maison" } ["wpis_subcategory_label"]=> array(1) { [0]=> string(14) "Immeuble mixte" } ["wpis_purpose_label"]=> array(1) { [0]=> string(9) "À vendre" } ["wpis_status_label"]=> array(1) { [0]=> string(9) "À vendre" } ["wpis_links_virtualVisit"]=> array(1) { [0]=> NULL } ["wpis_links_video"]=> array(1) { [0]=> NULL } ["wpis_links_model"]=> array(1) { [0]=> NULL } ["wpis_links_appointment"]=> array(1) { [0]=> NULL } ["wpis_links_custom"]=> array(1) { [0]=> NULL } ["wpis_properties_hasChildren"]=> array(1) { [0]=> string(0) "" } ["wpis_properties_hasParent"]=> array(1) { [0]=> string(0) "" } ["wpis_properties_parentId"]=> array(1) { [0]=> NULL } ["wpis_properties_isFavorite"]=> array(1) { [0]=> string(0) "" } ["wpis_properties_isFurnished"]=> array(1) { [0]=> string(0) "" } ["wpis_finance_price"]=> array(1) { [0]=> string(6) "119000" } ["wpis_finance_priceChangedAt"]=> array(1) { [0]=> string(27) "2026-04-08T14:11:13.170000Z" } ["wpis_finance_availableAt"]=> array(1) { [0]=> NULL } ["wpis_finance_availability"]=> array(1) { [0]=> string(9) "à l'acte" } ["wpis_finance_currency"]=> array(1) { [0]=> string(3) "€" } ["wpis_finance_annuityMonthly"]=> array(1) { [0]=> NULL } ["wpis_finance_cadastre"]=> array(1) { [0]=> string(4) "1730" } ["wpis_finance_propertyTax"]=> array(1) { [0]=> NULL } ["wpis_finance_chargeOwner"]=> array(1) { [0]=> NULL } ["wpis_finance_chargeRenter"]=> array(1) { [0]=> NULL } ["wpis_finance_fieldValue"]=> array(1) { [0]=> NULL } ["wpis_finance_constructionValue"]=> array(1) { [0]=> NULL } ["wpis_finance_notarialDeedValue"]=> array(1) { [0]=> NULL } ["wpis_finance_garageUnitPrice"]=> array(1) { [0]=> NULL } ["wpis_finance_parkingUnitPrice"]=> array(1) { [0]=> NULL } ["wpis_finance_parkingInteriorUnitPrice"]=> array(1) { [0]=> NULL } ["wpis_finance_parkingExteriorUnitPrice"]=> array(1) { [0]=> NULL } ["wpis_finance_offer"]=> array(1) { [0]=> string(0) "" } ["wpis_finance_hidden"]=> array(1) { [0]=> string(0) "" } ["wpis_building_constructionYear"]=> array(1) { [0]=> NULL } ["wpis_building_renovationYear"]=> array(1) { [0]=> NULL } ["wpis_building_orientation"]=> array(1) { [0]=> NULL } ["wpis_building_gardenOrientation"]=> array(1) { [0]=> NULL } ["wpis_building_terraceOrientation"]=> array(1) { [0]=> NULL } ["wpis_building_state"]=> array(1) { [0]=> string(11) "À rénover" } ["wpis_areas_total"]=> array(1) { [0]=> string(2) "99" } ["wpis_areas_ground"]=> array(1) { [0]=> string(2) "62" } ["wpis_areas_garden"]=> array(1) { [0]=> NULL } ["wpis_areas_living"]=> array(1) { [0]=> string(2) "18" } ["wpis_areas_diningroom"]=> array(1) { [0]=> NULL } ["wpis_areas_kitchen"]=> array(1) { [0]=> string(2) "15" } ["wpis_areas_bathroom"]=> array(1) { [0]=> NULL } ["wpis_areas_cellar"]=> array(1) { [0]=> NULL } ["wpis_areas_washroom"]=> array(1) { [0]=> NULL } ["wpis_areas_dressing"]=> array(1) { [0]=> NULL } ["wpis_areas_office"]=> array(1) { [0]=> NULL } ["wpis_areas_bedroom1"]=> array(1) { [0]=> string(2) "15" } ["wpis_areas_bedroom2"]=> array(1) { [0]=> string(2) "10" } ["wpis_areas_bedroom3"]=> array(1) { [0]=> NULL } ["wpis_areas_bedroom4"]=> array(1) { [0]=> NULL } ["wpis_areas_bedroom5"]=> array(1) { [0]=> NULL } ["wpis_areas_showroom"]=> array(1) { [0]=> NULL } ["wpis_areas_storage"]=> array(1) { [0]=> NULL } ["wpis_areas_terrace"]=> array(1) { [0]=> NULL } ["wpis_areas_manufacturing"]=> array(1) { [0]=> NULL } ["wpis_areas_displayWindow"]=> array(1) { [0]=> NULL } ["wpis_energy_epcCode"]=> array(1) { [0]=> string(14) "20240408027452" } ["wpis_energy_epcLabel"]=> array(1) { [0]=> string(1) "E" } ["wpis_energy_epcValue"]=> array(1) { [0]=> string(3) "415" } ["wpis_energy_epcTotal"]=> array(1) { [0]=> string(5) "41190" } ["wpis_energy_gazEmit"]=> array(1) { [0]=> NULL } ["wpis_energy_heatingType"]=> array(1) { [0]=> NULL } ["wpis_energy_solarElectricity"]=> array(1) { [0]=> NULL } ["wpis_energy_electricityConformity"]=> array(1) { [0]=> string(3) "non" } ["wpis_address_street"]=> array(1) { [0]=> string(9) "Crapaurue" } ["wpis_address_number"]=> array(1) { [0]=> string(2) "97" } ["wpis_address_box"]=> array(1) { [0]=> NULL } ["wpis_address_zip"]=> array(1) { [0]=> string(4) "4800" } ["wpis_address_city"]=> array(1) { [0]=> string(8) "Verviers" } ["wpis_address_country"]=> array(1) { [0]=> string(8) "Belgique" } ["wpis_address_longitude"]=> array(1) { [0]=> string(15) "5.8645159006119" } ["wpis_address_latitude"]=> array(1) { [0]=> string(15) "50.592752499062" } ["wpis_proximity_highway"]=> array(1) { [0]=> string(1) "1" } ["wpis_proximity_transports"]=> array(1) { [0]=> string(1) "1" } ["wpis_proximity_station"]=> array(1) { [0]=> NULL } ["wpis_proximity_bus"]=> array(1) { [0]=> NULL } ["wpis_proximity_metro"]=> array(1) { [0]=> NULL } ["wpis_proximity_tram"]=> array(1) { [0]=> NULL } ["wpis_proximity_school"]=> array(1) { [0]=> string(1) "1" } ["wpis_proximity_stores"]=> array(1) { [0]=> string(1) "1" } ["wpis_proximity_sportCenter"]=> array(1) { [0]=> string(1) "1" } ["wpis_proximity_beach"]=> array(1) { [0]=> string(1) "1" } ["wpis_configuration_floorCurrent"]=> array(1) { [0]=> NULL } ["wpis_configuration_floorTotal"]=> array(1) { [0]=> NULL } ["wpis_configuration_bedrooms"]=> array(1) { [0]=> string(1) "2" } ["wpis_configuration_kitchens"]=> array(1) { [0]=> string(1) "1" } ["wpis_configuration_toilets"]=> array(1) { [0]=> string(1) "1" } ["wpis_configuration_bathrooms"]=> array(1) { [0]=> string(1) "1" } ["wpis_configuration_showerrooms"]=> array(1) { [0]=> NULL } ["wpis_configuration_garages"]=> array(1) { [0]=> string(1) "0" } ["wpis_configuration_terraces"]=> array(1) { [0]=> string(1) "0" } ["wpis_configuration_cave"]=> array(1) { [0]=> NULL } ["wpis_configuration_parking"]=> array(1) { [0]=> string(0) "" } ["wpis_configuration_garden"]=> array(1) { [0]=> string(0) "" } ["wpis_files"]=> array(1) { [0]=> string(6) "a:0:{}" } ["wpis_createdAt"]=> array(1) { [0]=> string(27) "2026-03-09T12:11:38.467000Z" } ["wpis_updatedAt"]=> array(1) { [0]=> string(27) "2026-04-08T14:11:13.170000Z" } ["wpis_purpose_id"]=> array(1) { [0]=> string(1) "1" } ["wpis_status_id"]=> array(1) { [0]=> string(1) "1" } ["wpis_description_title"]=> array(1) { [0]=> string(57) "MAISON ET COMMERCE - A RENOVER - CENTRE VILLE - LUMINEUSE" } ["wpis_description_base"]=> array(1) { [0]=> NULL } ["wpis_description_short"]=> array(1) { [0]=> string(1435) "La société HOME'S IMMO a le plaisir de vous proposer à la vente une maison de commerce idéalement située en centre-ville, offrant un fort potentiel de rénovation et de réaménagement. Le bien bénéficie d’une très belle vitrine ainsi que d’un accès par l’arrière du bâtiment. Le bien se compose d’un vaste rez-de-chaussée commercial d’environ 62 m², idéal pour le développement d’une activité commerciale, complété par trois niveaux de 45 m² chacun, dont un logement de 99 m² (selon PEB). Au premier étage : un grand séjour et une cuisine. Au deuxième étage : une chambre à coucher, une toilette, une deuxième chambre à coucher ainsi qu’une salle de bains. Au troisième étage : un grenier aménageable. Au sous-sol : vous bénéficierez également de caves, offrant un espace de stockage supplémentaire. Ce bien représente une opportunité idéale pour investisseurs ou commerçants souhaitant développer un projet sur mesure en centre-ville. Caractéristiques techniques Simple vitrage Raccordement à l’égout Électricité à rénover Compteurs individuels eau, électricité et gaz RC: 1730 EUROS Chauffage central au gaz Le bien sera disponible à l’acte authentique. Servitudes existantes. Annonce non contractuelle – sous réserve d’acceptation du propriétaire. Ne tardez pas à planifier votre visite au 0494 60 56 82 ou par email à info@homes-immo.be ." } ["wpis_description_long"]=> array(1) { [0]=> NULL } ["wpis_amenities_generic"]=> array(1) { [0]=> string(89) "a:4:{i:0;s:7:"Égouts";i:1;s:12:"Electricité";i:2;s:3:"Gaz";i:3;s:15:"Accès à l'eau";}" } ["wpis_amenities_custom"]=> array(1) { [0]=> string(6) "a:0:{}" } ["wpis_agency_id"]=> array(1) { [0]=> string(4) "9721" } ["wpis_agency_name"]=> array(1) { [0]=> string(11) "HOME'S IMMO" } ["wpis_agency_phone"]=> array(1) { [0]=> NULL } ["wpis_agency_email"]=> array(1) { [0]=> NULL } ["wpis_agency_addressFormatted"]=> array(1) { [0]=> NULL } ["wpis_agent_firstname"]=> array(1) { [0]=> string(3) "SRL" } ["wpis_agent_lastname"]=> array(1) { [0]=> string(11) "HOME'S IMMO" } ["wpis_agent_email"]=> array(1) { [0]=> string(18) "info@homes-immo.be" } ["wpis_agent_phone"]=> array(1) { [0]=> string(13) "0494 60 56 82" } ["wpis_agent_role"]=> array(1) { [0]=> string(13) "0494 60 56 82" } ["wpis_agent_picture"]=> array(1) { [0]=> string(62) "https://r2.storagewhise.eu/storage7345/Images/Agents/33483.jpg" } ["wpis_unmapped"]=> array(1) { [0]=> string(6) "a:0:{}" } ["wpis_dataHash"]=> array(1) { [0]=> string(32) "1068ea10975e574bf4f6bfc73c3b0ab3" } ["wpis_picturesTemp"]=> array(1) { [0]=> string(5051) "[{"id":"76193648","title":null,"description":null,"order":"0","filename":"840bba43d72946ba89f56878dbca711f","format":"jpg","url":"https://r2.storagewhise.eu/storage7345/Pictures/7600570/1600/840bba43d72946ba89f56878dbca711f.jpg"},{"id":"76193664","title":null,"description":null,"order":"1","filename":"7e3b7ffcaab94e1fa8c780cb39ec382f","format":"jpg","url":"https://r2.storagewhise.eu/storage7345/Pictures/7600570/1600/7e3b7ffcaab94e1fa8c780cb39ec382f.jpg"},{"id":"76193661","title":null,"description":null,"order":"2","filename":"3b1911086111415891b38b29879a6d6d","format":"jpg","url":"https://r2.storagewhise.eu/storage7345/Pictures/7600570/1600/3b1911086111415891b38b29879a6d6d.jpg"},{"id":"76193663","title":null,"description":null,"order":"3","filename":"b0c368ff3c6c4ba589b1f0c832828a84","format":"jpg","url":"https://r2.storagewhise.eu/storage7345/Pictures/7600570/1600/b0c368ff3c6c4ba589b1f0c832828a84.jpg"},{"id":"76193662","title":null,"description":null,"order":"4","filename":"a2b435665e9a483c86a741a4cc422b85","format":"jpg","url":"https://r2.storagewhise.eu/storage7345/Pictures/7600570/1600/a2b435665e9a483c86a741a4cc422b85.jpg"},{"id":"76193650","title":null,"description":null,"order":"5","filename":"9de1f427a9524126b1f82d877295533c","format":"jpg","url":"https://r2.storagewhise.eu/storage7345/Pictures/7600570/1600/9de1f427a9524126b1f82d877295533c.jpg"},{"id":"76193651","title":null,"description":null,"order":"6","filename":"cbf36d5cf4214e37931c7ea364dbae1b","format":"jpg","url":"https://r2.storagewhise.eu/storage7345/Pictures/7600570/1600/cbf36d5cf4214e37931c7ea364dbae1b.jpg"},{"id":"76193649","title":null,"description":null,"order":"7","filename":"a704f3e8b42e408ea699834b1f00b65c","format":"jpg","url":"https://r2.storagewhise.eu/storage7345/Pictures/7600570/1600/a704f3e8b42e408ea699834b1f00b65c.jpg"},{"id":"76193652","title":null,"description":null,"order":"8","filename":"fd80432b7ef54783b2853b38805f5fa1","format":"jpg","url":"https://r2.storagewhise.eu/storage7345/Pictures/7600570/1600/fd80432b7ef54783b2853b38805f5fa1.jpg"},{"id":"76193653","title":null,"description":null,"order":"9","filename":"da37be0d88b847998ee51fca6f103a6c","format":"jpg","url":"https://r2.storagewhise.eu/storage7345/Pictures/7600570/1600/da37be0d88b847998ee51fca6f103a6c.jpg"},{"id":"76193654","title":null,"description":null,"order":"10","filename":"21c67c9c60184396b1a4f8ae6c3cdacc","format":"jpg","url":"https://r2.storagewhise.eu/storage7345/Pictures/7600570/1600/21c67c9c60184396b1a4f8ae6c3cdacc.jpg"},{"id":"76193655","title":null,"description":null,"order":"11","filename":"addeafc97d0544ae9f3cd34f1fe8bef5","format":"jpg","url":"https://r2.storagewhise.eu/storage7345/Pictures/7600570/1600/addeafc97d0544ae9f3cd34f1fe8bef5.jpg"},{"id":"76193656","title":null,"description":null,"order":"12","filename":"af87420011da43e597733555945820df","format":"jpg","url":"https://r2.storagewhise.eu/storage7345/Pictures/7600570/1600/af87420011da43e597733555945820df.jpg"},{"id":"76193647","title":null,"description":null,"order":"13","filename":"fbd3a64e6b704976af17aa7f96cd48e7","format":"png","url":"https://r2.storagewhise.eu/storage7345/Pictures/7600570/1600/fbd3a64e6b704976af17aa7f96cd48e7.png"},{"id":"76193658","title":null,"description":null,"order":"14","filename":"df63fb622f73481c9d550ee24783de4b","format":"jpg","url":"https://r2.storagewhise.eu/storage7345/Pictures/7600570/1600/df63fb622f73481c9d550ee24783de4b.jpg"},{"id":"76193659","title":null,"description":null,"order":"15","filename":"7db895876f0542dda54a40c9ac4a370f","format":"jpg","url":"https://r2.storagewhise.eu/storage7345/Pictures/7600570/1600/7db895876f0542dda54a40c9ac4a370f.jpg"},{"id":"76193660","title":null,"description":null,"order":"16","filename":"87347a4d922843998c81d3f4bc0d8d40","format":"jpg","url":"https://r2.storagewhise.eu/storage7345/Pictures/7600570/1600/87347a4d922843998c81d3f4bc0d8d40.jpg"},{"id":"76194346","title":null,"description":null,"order":"17","filename":"53ac31d204c34d93811aa650ef862872","format":"jpg","url":"https://r2.storagewhise.eu/storage7345/Pictures/7600570/1600/53ac31d204c34d93811aa650ef862872.jpg"},{"id":"76193667","title":null,"description":null,"order":"18","filename":"c8bb1578e3fc45538a67d585b069bf20","format":"jpg","url":"https://r2.storagewhise.eu/storage7345/Pictures/7600570/1600/c8bb1578e3fc45538a67d585b069bf20.jpg"},{"id":"76193665","title":null,"description":null,"order":"19","filename":"e77b741d65ac4ec38173b7ed82db6968","format":"jpg","url":"https://r2.storagewhise.eu/storage7345/Pictures/7600570/1600/e77b741d65ac4ec38173b7ed82db6968.jpg"},{"id":"76193666","title":null,"description":null,"order":"20","filename":"d752d04c15f544b7afc5f288e5ae7d7f","format":"jpg","url":"https://r2.storagewhise.eu/storage7345/Pictures/7600570/1600/d752d04c15f544b7afc5f288e5ae7d7f.jpg"},{"id":"76193668","title":null,"description":null,"order":"21","filename":"2f724e45062f4e838d3cd5e7a7947ae0","format":"jpg","url":"https://r2.storagewhise.eu/storage7345/Pictures/7600570/1600/2f724e45062f4e838d3cd5e7a7947ae0.jpg"}]" } ["wpis_picturesHashChanged"]=> array(1) { [0]=> string(0) "" } ["wpis_picturesHash"]=> array(1) { [0]=> string(32) "e7de4b824de617ca8d15e6bc4813c094" } ["wpis_completed"]=> array(1) { [0]=> string(1) "1" } ["_wp_old_slug"]=> array(1) { [0]=> string(33) "7600570-rue-crapaurue-99-verviers" } }
Estimation gratuite