Menu

Maison

4800 Verviers

73 m²
3
1

HOME'S IMMO

Contacter HOME'S IMMO

info@homes-immo.be

Appeler HOME'S IMMO

0494 60 56 82
Description
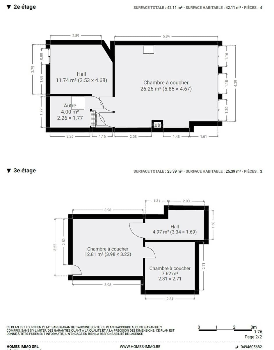
La société HOME'S IMMO a le plaisir de vous proposer à la vente une maison de commerce idéalement située en centre-ville, offrant un fort potentiel de rénovation et de réaménagement. Le bien se compose d’un vaste rez-de-chaussée commercial d’environ 60 m², idéal pour le développement d’une activité commerciale, complété par trois niveaux d’environ 45 m² chacun, comprenant notamment un logement de 73 m² (selon PEB). Disposition : Premier étage : deux toilettes séparées et un séjour. Deuxième étage : une grande chambre à coucher et un espace salle de bains. Troisième étage : deux chambres à coucher. Grandes caves. Ce bien représente une opportunité idéale pour investisseurs ou commerçants souhaitant développer un projet sur mesure en centre-ville. Caractéristiques techniques : Simple vitrage, raccordement à l’égout, électricité à rénover, compteurs d’eau et d’électricité individuels (servitude d’accès). Servitudes existantes, Absence de chauffage central, RC: 1606 EUROS Le bien sera disponible à l’acte authentique. Annonce non contractuelle – sous réserve d’acceptation du propriétaire. 📞 Ne tardez pas à planifier votre visite au 0494 60 56 82 ou par email à info@homes-immo.be

Adresse

Crapaurue 97, 4800 Verviers, Belgique

Type de bien

Maison

État du bien

À rénover

Conformité électrique

non

Prix

119 000 €

Disponibilité

à l'acte

Cadastre

1 606 €

Classe énergétique PEB

G

Code unique PEB

20240408027217

Valeur énergétique E-SPEC

631 kWh/m²/an

Valeur énergétique total E-Total

46068 Kwh/an

Sup. totale

73 m²

Sup. du terrain

60 m²

Sup. du living

26 m²

Chambre 1

27 m²

Chambre 2

13 m²

Chambre 3

8 m²

Nb de chambre(s)

3

Toilettes

2

Salles de bains

1

Égouts

Electricité

Accès à l'eau

array(133) { ["rank_math_internal_links_processed"]=> array(1) { [0]=> string(1) "1" } ["_thumbnail_id"]=> array(1) { [0]=> string(5) "28148" } ["wpis_locked"]=> array(1) { [0]=> string(1) "0" } ["wpis_id"]=> array(1) { [0]=> string(7) "7600600" } ["wpis_name"]=> array(1) { [0]=> string(30) "RUE CRAPAURUE 97 4800 VERVIERS" } ["wpis_reference"]=> array(1) { [0]=> NULL } ["wpis_category_label"]=> array(1) { [0]=> string(6) "Maison" } ["wpis_subcategory_label"]=> array(1) { [0]=> string(14) "Immeuble mixte" } ["wpis_purpose_label"]=> array(1) { [0]=> string(9) "À vendre" } ["wpis_status_label"]=> array(1) { [0]=> string(9) "À vendre" } ["wpis_links_virtualVisit"]=> array(1) { [0]=> NULL } ["wpis_links_video"]=> array(1) { [0]=> NULL } ["wpis_links_model"]=> array(1) { [0]=> NULL } ["wpis_links_appointment"]=> array(1) { [0]=> NULL } ["wpis_links_custom"]=> array(1) { [0]=> NULL } ["wpis_properties_hasChildren"]=> array(1) { [0]=> string(0) "" } ["wpis_properties_hasParent"]=> array(1) { [0]=> string(0) "" } ["wpis_properties_parentId"]=> array(1) { [0]=> NULL } ["wpis_properties_isFavorite"]=> array(1) { [0]=> string(0) "" } ["wpis_properties_isFurnished"]=> array(1) { [0]=> string(0) "" } ["wpis_finance_price"]=> array(1) { [0]=> string(6) "119000" } ["wpis_finance_priceChangedAt"]=> array(1) { [0]=> string(27) "2026-04-08T14:10:37.640000Z" } ["wpis_finance_availableAt"]=> array(1) { [0]=> NULL } ["wpis_finance_availability"]=> array(1) { [0]=> string(9) "à l'acte" } ["wpis_finance_currency"]=> array(1) { [0]=> string(3) "€" } ["wpis_finance_annuityMonthly"]=> array(1) { [0]=> NULL } ["wpis_finance_cadastre"]=> array(1) { [0]=> string(4) "1606" } ["wpis_finance_propertyTax"]=> array(1) { [0]=> NULL } ["wpis_finance_chargeOwner"]=> array(1) { [0]=> NULL } ["wpis_finance_chargeRenter"]=> array(1) { [0]=> NULL } ["wpis_finance_fieldValue"]=> array(1) { [0]=> NULL } ["wpis_finance_constructionValue"]=> array(1) { [0]=> NULL } ["wpis_finance_notarialDeedValue"]=> array(1) { [0]=> NULL } ["wpis_finance_garageUnitPrice"]=> array(1) { [0]=> NULL } ["wpis_finance_parkingUnitPrice"]=> array(1) { [0]=> NULL } ["wpis_finance_parkingInteriorUnitPrice"]=> array(1) { [0]=> NULL } ["wpis_finance_parkingExteriorUnitPrice"]=> array(1) { [0]=> NULL } ["wpis_finance_offer"]=> array(1) { [0]=> string(0) "" } ["wpis_finance_hidden"]=> array(1) { [0]=> string(0) "" } ["wpis_building_constructionYear"]=> array(1) { [0]=> NULL } ["wpis_building_renovationYear"]=> array(1) { [0]=> NULL } ["wpis_building_orientation"]=> array(1) { [0]=> NULL } ["wpis_building_gardenOrientation"]=> array(1) { [0]=> NULL } ["wpis_building_terraceOrientation"]=> array(1) { [0]=> NULL } ["wpis_building_state"]=> array(1) { [0]=> string(11) "À rénover" } ["wpis_areas_total"]=> array(1) { [0]=> string(2) "73" } ["wpis_areas_ground"]=> array(1) { [0]=> string(2) "60" } ["wpis_areas_garden"]=> array(1) { [0]=> NULL } ["wpis_areas_living"]=> array(1) { [0]=> string(2) "26" } ["wpis_areas_diningroom"]=> array(1) { [0]=> NULL } ["wpis_areas_kitchen"]=> array(1) { [0]=> NULL } ["wpis_areas_bathroom"]=> array(1) { [0]=> NULL } ["wpis_areas_cellar"]=> array(1) { [0]=> NULL } ["wpis_areas_washroom"]=> array(1) { [0]=> NULL } ["wpis_areas_dressing"]=> array(1) { [0]=> NULL } ["wpis_areas_office"]=> array(1) { [0]=> NULL } ["wpis_areas_bedroom1"]=> array(1) { [0]=> string(2) "27" } ["wpis_areas_bedroom2"]=> array(1) { [0]=> string(2) "13" } ["wpis_areas_bedroom3"]=> array(1) { [0]=> string(1) "8" } ["wpis_areas_bedroom4"]=> array(1) { [0]=> NULL } ["wpis_areas_bedroom5"]=> array(1) { [0]=> NULL } ["wpis_areas_showroom"]=> array(1) { [0]=> NULL } ["wpis_areas_storage"]=> array(1) { [0]=> NULL } ["wpis_areas_terrace"]=> array(1) { [0]=> NULL } ["wpis_areas_manufacturing"]=> array(1) { [0]=> NULL } ["wpis_areas_displayWindow"]=> array(1) { [0]=> NULL } ["wpis_energy_epcCode"]=> array(1) { [0]=> string(14) "20240408027217" } ["wpis_energy_epcLabel"]=> array(1) { [0]=> string(1) "G" } ["wpis_energy_epcValue"]=> array(1) { [0]=> string(3) "631" } ["wpis_energy_epcTotal"]=> array(1) { [0]=> string(5) "46068" } ["wpis_energy_gazEmit"]=> array(1) { [0]=> NULL } ["wpis_energy_heatingType"]=> array(1) { [0]=> NULL } ["wpis_energy_solarElectricity"]=> array(1) { [0]=> NULL } ["wpis_energy_electricityConformity"]=> array(1) { [0]=> string(3) "non" } ["wpis_address_street"]=> array(1) { [0]=> string(9) "Crapaurue" } ["wpis_address_number"]=> array(1) { [0]=> string(2) "97" } ["wpis_address_box"]=> array(1) { [0]=> NULL } ["wpis_address_zip"]=> array(1) { [0]=> string(4) "4800" } ["wpis_address_city"]=> array(1) { [0]=> string(8) "Verviers" } ["wpis_address_country"]=> array(1) { [0]=> string(8) "Belgique" } ["wpis_address_longitude"]=> array(1) { [0]=> string(15) "5.8645695447922" } ["wpis_address_latitude"]=> array(1) { [0]=> string(14) "50.59275931003" } ["wpis_proximity_highway"]=> array(1) { [0]=> string(1) "1" } ["wpis_proximity_transports"]=> array(1) { [0]=> string(1) "1" } ["wpis_proximity_station"]=> array(1) { [0]=> NULL } ["wpis_proximity_bus"]=> array(1) { [0]=> NULL } ["wpis_proximity_metro"]=> array(1) { [0]=> NULL } ["wpis_proximity_tram"]=> array(1) { [0]=> NULL } ["wpis_proximity_school"]=> array(1) { [0]=> string(1) "1" } ["wpis_proximity_stores"]=> array(1) { [0]=> string(1) "1" } ["wpis_proximity_sportCenter"]=> array(1) { [0]=> string(1) "1" } ["wpis_proximity_beach"]=> array(1) { [0]=> string(1) "1" } ["wpis_configuration_floorCurrent"]=> array(1) { [0]=> NULL } ["wpis_configuration_floorTotal"]=> array(1) { [0]=> NULL } ["wpis_configuration_bedrooms"]=> array(1) { [0]=> string(1) "3" } ["wpis_configuration_kitchens"]=> array(1) { [0]=> NULL } ["wpis_configuration_toilets"]=> array(1) { [0]=> string(1) "2" } ["wpis_configuration_bathrooms"]=> array(1) { [0]=> string(1) "1" } ["wpis_configuration_showerrooms"]=> array(1) { [0]=> NULL } ["wpis_configuration_garages"]=> array(1) { [0]=> string(1) "0" } ["wpis_configuration_terraces"]=> array(1) { [0]=> string(1) "0" } ["wpis_configuration_cave"]=> array(1) { [0]=> NULL } ["wpis_configuration_parking"]=> array(1) { [0]=> string(0) "" } ["wpis_configuration_garden"]=> array(1) { [0]=> string(0) "" } ["wpis_files"]=> array(1) { [0]=> string(6) "a:0:{}" } ["wpis_createdAt"]=> array(1) { [0]=> string(27) "2026-03-09T12:22:43.710000Z" } ["wpis_updatedAt"]=> array(1) { [0]=> string(27) "2026-04-08T14:11:00.907000Z" } ["wpis_purpose_id"]=> array(1) { [0]=> string(1) "1" } ["wpis_status_id"]=> array(1) { [0]=> string(1) "1" } ["wpis_description_title"]=> array(1) { [0]=> string(57) "MAISON ET COMMERCE - A RENOVER - CENTRE VILLE - LUMINEUSE" } ["wpis_description_base"]=> array(1) { [0]=> NULL } ["wpis_description_short"]=> array(1) { [0]=> string(1275) "La société HOME'S IMMO a le plaisir de vous proposer à la vente une maison de commerce idéalement située en centre-ville, offrant un fort potentiel de rénovation et de réaménagement. Le bien se compose d’un vaste rez-de-chaussée commercial d’environ 60 m², idéal pour le développement d’une activité commerciale, complété par trois niveaux d’environ 45 m² chacun, comprenant notamment un logement de 73 m² (selon PEB). Disposition : Premier étage : deux toilettes séparées et un séjour. Deuxième étage : une grande chambre à coucher et un espace salle de bains. Troisième étage : deux chambres à coucher. Grandes caves. Ce bien représente une opportunité idéale pour investisseurs ou commerçants souhaitant développer un projet sur mesure en centre-ville. Caractéristiques techniques : Simple vitrage, raccordement à l’égout, électricité à rénover, compteurs d’eau et d’électricité individuels (servitude d’accès). Servitudes existantes, Absence de chauffage central, RC: 1606 EUROS Le bien sera disponible à l’acte authentique. Annonce non contractuelle – sous réserve d’acceptation du propriétaire. 📞 Ne tardez pas à planifier votre visite au 0494 60 56 82 ou par email à info@homes-immo.be" } ["wpis_description_long"]=> array(1) { [0]=> NULL } ["wpis_amenities_generic"]=> array(1) { [0]=> string(75) "a:3:{i:0;s:7:"Égouts";i:1;s:12:"Electricité";i:2;s:15:"Accès à l'eau";}" } ["wpis_amenities_custom"]=> array(1) { [0]=> string(6) "a:0:{}" } ["wpis_agency_id"]=> array(1) { [0]=> string(4) "9721" } ["wpis_agency_name"]=> array(1) { [0]=> string(11) "HOME'S IMMO" } ["wpis_agency_phone"]=> array(1) { [0]=> NULL } ["wpis_agency_email"]=> array(1) { [0]=> NULL } ["wpis_agency_addressFormatted"]=> array(1) { [0]=> NULL } ["wpis_agent_firstname"]=> array(1) { [0]=> string(3) "SRL" } ["wpis_agent_lastname"]=> array(1) { [0]=> string(11) "HOME'S IMMO" } ["wpis_agent_email"]=> array(1) { [0]=> string(18) "info@homes-immo.be" } ["wpis_agent_phone"]=> array(1) { [0]=> string(13) "0494 60 56 82" } ["wpis_agent_role"]=> array(1) { [0]=> string(13) "0494 60 56 82" } ["wpis_agent_picture"]=> array(1) { [0]=> string(62) "https://r2.storagewhise.eu/storage7345/Images/Agents/33483.jpg" } ["wpis_unmapped"]=> array(1) { [0]=> string(6) "a:0:{}" } ["wpis_dataHash"]=> array(1) { [0]=> string(32) "7588e41f51df023539d65fb1950d3986" } ["wpis_picturesTemp"]=> array(1) { [0]=> string(4131) "[{"id":"76194583","title":null,"description":null,"order":"0","filename":"45548efd4f674a4fa19d0ad5fbda9b5a","format":"jpg","url":"https://r2.storagewhise.eu/storage7345/Pictures/7600600/1600/45548efd4f674a4fa19d0ad5fbda9b5a.jpg"},{"id":"76194584","title":null,"description":null,"order":"1","filename":"f320ddaab5674b4da06db3205510166b","format":"jpg","url":"https://r2.storagewhise.eu/storage7345/Pictures/7600600/1600/f320ddaab5674b4da06db3205510166b.jpg"},{"id":"76194585","title":null,"description":null,"order":"2","filename":"74bc13fbcab043bf87ad77794232b331","format":"jpg","url":"https://r2.storagewhise.eu/storage7345/Pictures/7600600/1600/74bc13fbcab043bf87ad77794232b331.jpg"},{"id":"76194586","title":null,"description":null,"order":"3","filename":"a1fc63d658d1402d9883c5f93cac93c3","format":"jpg","url":"https://r2.storagewhise.eu/storage7345/Pictures/7600600/1600/a1fc63d658d1402d9883c5f93cac93c3.jpg"},{"id":"76194595","title":null,"description":null,"order":"4","filename":"b2ebff07333c4c12a45077a29bb7d4bc","format":"jpg","url":"https://r2.storagewhise.eu/storage7345/Pictures/7600600/1600/b2ebff07333c4c12a45077a29bb7d4bc.jpg"},{"id":"76194582","title":null,"description":null,"order":"5","filename":"8dd379053ecc4f78a1dc6cb9f9158883","format":"png","url":"https://r2.storagewhise.eu/storage7345/Pictures/7600600/1600/8dd379053ecc4f78a1dc6cb9f9158883.png"},{"id":"76194589","title":null,"description":null,"order":"6","filename":"d98a47f13e174d50945173174300a1b5","format":"jpg","url":"https://r2.storagewhise.eu/storage7345/Pictures/7600600/1600/d98a47f13e174d50945173174300a1b5.jpg"},{"id":"76194587","title":null,"description":null,"order":"7","filename":"585e3b602dff483bb96e2514fdc223bc","format":"jpg","url":"https://r2.storagewhise.eu/storage7345/Pictures/7600600/1600/585e3b602dff483bb96e2514fdc223bc.jpg"},{"id":"76194588","title":null,"description":null,"order":"8","filename":"ebe13356a940452e93c549e5733c756a","format":"jpg","url":"https://r2.storagewhise.eu/storage7345/Pictures/7600600/1600/ebe13356a940452e93c549e5733c756a.jpg"},{"id":"76194590","title":null,"description":null,"order":"9","filename":"e3c731c90a024cb7aac627936c7b12a5","format":"jpg","url":"https://r2.storagewhise.eu/storage7345/Pictures/7600600/1600/e3c731c90a024cb7aac627936c7b12a5.jpg"},{"id":"76194591","title":null,"description":null,"order":"10","filename":"a4523da5dbfc42ce9c94681de091402a","format":"jpg","url":"https://r2.storagewhise.eu/storage7345/Pictures/7600600/1600/a4523da5dbfc42ce9c94681de091402a.jpg"},{"id":"76194592","title":null,"description":null,"order":"11","filename":"21a965e85a1748c5a2af138339006176","format":"jpg","url":"https://r2.storagewhise.eu/storage7345/Pictures/7600600/1600/21a965e85a1748c5a2af138339006176.jpg"},{"id":"76194593","title":null,"description":null,"order":"12","filename":"4bc0c77ca4d84b79aa2dc2c069ade4c1","format":"jpg","url":"https://r2.storagewhise.eu/storage7345/Pictures/7600600/1600/4bc0c77ca4d84b79aa2dc2c069ade4c1.jpg"},{"id":"76194594","title":null,"description":null,"order":"13","filename":"034fa897920141878efd9d6e78393627","format":"jpg","url":"https://r2.storagewhise.eu/storage7345/Pictures/7600600/1600/034fa897920141878efd9d6e78393627.jpg"},{"id":"76194596","title":null,"description":null,"order":"14","filename":"70431bad1f3049bea5e6d606b368e6c5","format":"jpg","url":"https://r2.storagewhise.eu/storage7345/Pictures/7600600/1600/70431bad1f3049bea5e6d606b368e6c5.jpg"},{"id":"76194701","title":null,"description":null,"order":"15","filename":"fa31c4300c17477ba5e001e72e659539","format":"jpg","url":"https://r2.storagewhise.eu/storage7345/Pictures/7600600/1600/fa31c4300c17477ba5e001e72e659539.jpg"},{"id":"76194702","title":null,"description":null,"order":"16","filename":"bce45f8de3e44e0796a736100530d2e8","format":"jpg","url":"https://r2.storagewhise.eu/storage7345/Pictures/7600600/1600/bce45f8de3e44e0796a736100530d2e8.jpg"},{"id":"76194703","title":null,"description":null,"order":"17","filename":"9ad003998efc41a2b4bc1a7c6ff7a2af","format":"jpg","url":"https://r2.storagewhise.eu/storage7345/Pictures/7600600/1600/9ad003998efc41a2b4bc1a7c6ff7a2af.jpg"}]" } ["wpis_picturesHashChanged"]=> array(1) { [0]=> string(0) "" } ["wpis_picturesHash"]=> array(1) { [0]=> string(32) "088203ebe0613f4e8024d2fcf75c26ff" } ["wpis_completed"]=> array(1) { [0]=> string(1) "1" } ["_wp_old_slug"]=> array(1) { [0]=> string(38) "7600600-rue-crapaurue-97-4800-verviers" } }
Estimation gratuite